加州豪园 B期(安岛径)
Royal Palms Phase B (Angel Island Avenue)
4.2
小区评分
location
加州 / 锦綉 安岛径1号
相片
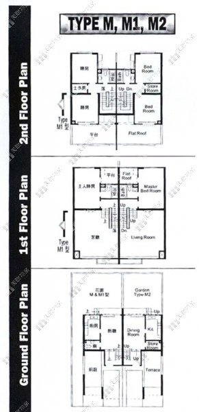
平面图
规划图
地图
加州豪园 B期(安岛径)
Royal Palms Phase B (Angel Island Avenue)
4.2
小区评分
location
加州 / 锦綉 安岛径1号
成交日期:
加州豪园 B期(安岛径)小区资料
加州豪园 B期(安岛径) 位于新界 加州 / 锦綉(美联分区) 安岛径1号,发展商为新鸿基,于1996年2月开始落成,由26座洋房组成,共有26个单位。实用面积为1,347至1,713平方呎,小区内设有会所、泳池、儿童设施、运动设施、美容/保健。附近设有加州花园商场停车场;周边民生设施完善,8分钟到达加州花园广场;区内亦设有小米兽医诊所。另外,小学校网在74区,中学校区在元朗。
物业座数
26座
单位数量
26套
楼龄
30.2年
落成日期
06/02/1996
小区设施
会所
泳池
儿童设施
运动设施
美容/保健
物业小区
特色
可养宠物
别墅
附近的小学: 光明英来学校、钟声学校、中华基督教会元朗真光小学、元朗官立小学、通德学校、港澳信义会黄陈淑英纪念学校、锦田公立蒙养学校、八乡中心小学
附近的中: 天主教崇德英文书院、新界乡议局元朗区中学、基督教香港信义会元朗信义中学、中华基督教会基元中学、赵聿修纪念中学、东华三院卢干庭纪念中学、香港管理专业协会罗桂祥中学、香港青年协会李兆基书院
小区优点
424座洋房,会所设施:泳池,儿童设施,网球场,建身设备及可养宠物,低密度物业,交通四通八达
物业层数
3层 (安岛径1-3,5-13,15-23,26,28,30,32,36号)
发展商
新鸿基
加州豪园 B期(安岛径)成交纪录
- 买卖
- 租务
全部间隔
27/03/25
安岛径15号
3房2厅 | 花园 | 露台(平台)
$1,200万
+91%
$1,200万
实1,495呎
3房
持货年期 16.3 年
16.3年
@$8,027
$630万
/
+91%
注册处成交
27/03/25
20/07/23
安岛径9号
3房2厅 | 花园 | 露台(平台)
$1,450万
+58%
$1,450万
实1,495呎
3房
持货年期 12.6 年
12.6年
@$9,699
$920万
/
+58%
注册处成交
20/07/23
20/07/21
安岛径28号
3房2厅 | 花园 | 露台(平台)
$1,533万
$1,533万
实1,347呎
3房
@$11,381
-
注册处成交
20/07/21
18/09/14
安岛径13号
3房2厅 | 花园 | 露台(平台) | 阳台
$1,050万
$1,050万
实1,596呎
3房
@$6,579
-
注册处成交
18/09/14
21/05/14
安岛径36号
3房2厅 | 花园 | 露台(平台)
$1,290万
+35%
$1,290万
实1,713呎
3房
持货年期 9.2 年
9.2年
@$7,531
$955万
/
+35%
注册处成交
21/05/14
26/04/12
安岛径22号
3房2厅 | 花园 | 露台(平台)
$880万
$880万
实1,347呎
3房
@$6,533
-
注册处成交
26/04/12
03/04/11
安岛径11号
3房2厅 | 花园 | 露台(平台)
$920万
$920万
实1,495呎
3房
@$6,154
-
注册处成交
03/04/11
16/12/10
安岛径9号
3房2厅 | 花园 | 露台(平台)
$920万
+48%
$920万
实1,495呎
3房
持货年期 4.1 年
4.1年
@$6,154
$623万
/
+48%
注册处成交
16/12/10
03/03/10
安岛径3号
3房2厅 | 花园 | 露台(平台)
$745万
$745万
实1,387呎
3房
@$5,371
-
注册处成交
03/03/10
18/12/08
安岛径15号
3房2厅 | 花园 | 露台(平台)
$630万
$630万
实1,495呎
3房
@$4,214
-
注册处成交
18/12/08
成交/注册日期
地址
户型
成交价
面积(实用)
呎价(实用)
上次成交价/ 升跌
持货年期
^ 特殊成交个案
加州豪园 B期(安岛径)相关新闻
更多成交新闻常见问题
Q1. 加州豪园 B期(安岛径)的发展商是?
A1. 新鸿基
Q2. 加州豪园 B期(安岛径)的落成日期?
A2. 1996年02月落成
Q3. 加州豪园 B期(安岛径)的规模?
A3. 加州豪园 B期(安岛径)共有1期,26座,提供26个单位
Q4. 加州豪园 B期(安岛径)平均单位面积?
A4. 实用面积由1,347呎至1,713呎不等
Q5. 加州豪园 B期(安岛径)交通是否方便?
A5. [object Object],[object Object]
Q6. 加州豪园 B期(安岛径)有哪些设施?
A6. 加州豪园 B期(安岛径)设有会所、泳池、儿童设施、运动设施与美容/保健等设施。
Q7. 加州豪园 B期(安岛径)的优点?
A7. 424座洋房,会所设施:泳池,儿童设施,网球场,建身设备及可养宠物,低密度物业,交通四通八达
Q8. 加州豪园 B期(安岛径)的校网?
A8. 小学校网为74,中学校区为元朗。
Q9. 加州豪园 B期(安岛径)邻近的小学?
A9. 光明英来学校、钟声学校、中华基督教会元朗真光小学、元朗官立小学、通德学校、港澳信义会黄陈淑英纪念学校、锦田公立蒙养学校及八乡中心小学
Q10. 加州豪园 B期(安岛径)邻近的中学?
A10. 天主教崇德英文书院、新界乡议局元朗区中学、基督教香港信义会元朗信义中学、中华基督教会基元中学、赵聿修纪念中学、东华三院卢干庭纪念中学、香港管理专业协会罗桂祥中学及香港青年协会李兆基书院
Q11. 加州豪园 B期(安岛径)楼龄?
A11. 30.2年
Q12. 加州豪园 B期(安岛径)单位数量?
A12. 26伙
Q13. 加州豪园 B期(安岛径)成交资料?
A13. 加州豪园B期(安岛径)安岛径15号最新成交一个1,495呎的3房单位,实用呎价为$8,027,可以在美联物业屋苑成交专页观看详情。
Q14. 加州豪园 B期(安岛径)期数有多少?
A14. 加州豪园 B期(安岛径)共有1期26座
Q15. 加州豪园 B期(安岛径)座数有多少?
A15. 加州豪园 B期(安岛径)共有26座,共26伙
Q16. 加州豪园 B期(安岛径)楼价?
A16. 加州豪园 B期(安岛径)成交平均呎价为$10,702,可以在加州豪园 B期(安岛径)屋苑专页按房間數量查看个别呎价。
