豪宅項目新一期樓書曝光。恒基地產(00012)及新世界發展(00017)合作的港島西半山天御,由兩座住宅大樓分兩期組成,繼早前上載項目第一期樓書後,周一(29日)再上載項目第二期的樓書,涉及66伙,頂層三複式戶比上期更大,實用面積逾1.2萬方呎。個別特色單位更設有室內泳池。
今期為一座樓高48層的住宅大樓,單位實用面積由2,682方呎起,主打四房戶型。有別於項目第一期的單位實用面積由834方呎起,今期不設兩房戶型。項目第二期除了設有4伙複式戶之外,亦提供9伙全層特色戶,實用面積均逾5,500方呎以上。包括第1座43樓全層單位,實用面積5,593方呎,設有三間套房、家庭間、飯廳及客廳等,其中一個客廳旁邊有一個長逾7.8米的室內泳池。
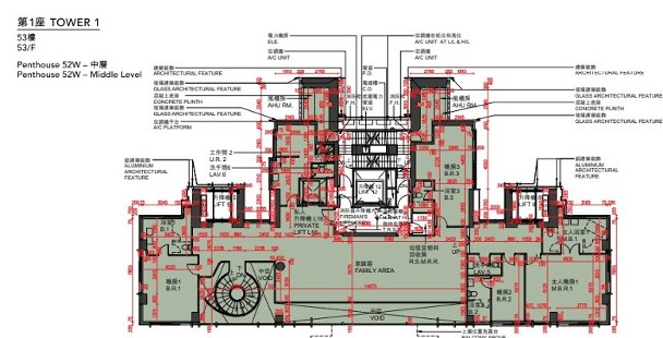
至於,面積最大的頂層的三複式單位Penthouse 52W,實用面積12,582方呎。該單位享有私人升降機,大廈的3樓設有私人升降大堂,可直通單位。低層為客廳及飯廳,三邊均設有平台,平台面積共1,283方呎。客廳有旋轉樓梯通往中層。中層為四間套房及家庭區,而上層則設有「總統套間」及「總統套間浴室」,兼配備健身室及桑拿房,對上天台實用面積達2,186方呎,附設私人露天泳池。



資料來源:on.cc東網
延伸閱讀:
最新動態
