Overbays
House 5
Land Reg.
location
71 Repulse Bay Road, Deep Water Bay
Reg. Date: 12/07/2021
Land Reg.
Photo
Map
Overbays
House 5
Land Reg.
location
71 Repulse Bay Road, Deep Water Bay
Reg. Date: 12/07/2021
Land Reg.
Price$438M
Reg. Date: 12/07/2021
SFA:
3,871ft²
$113,149/ft²
GFA:
4,180ft²
$104,785/ft²
Estate
93%
43.5 Year(s)
Feature
Transaction History
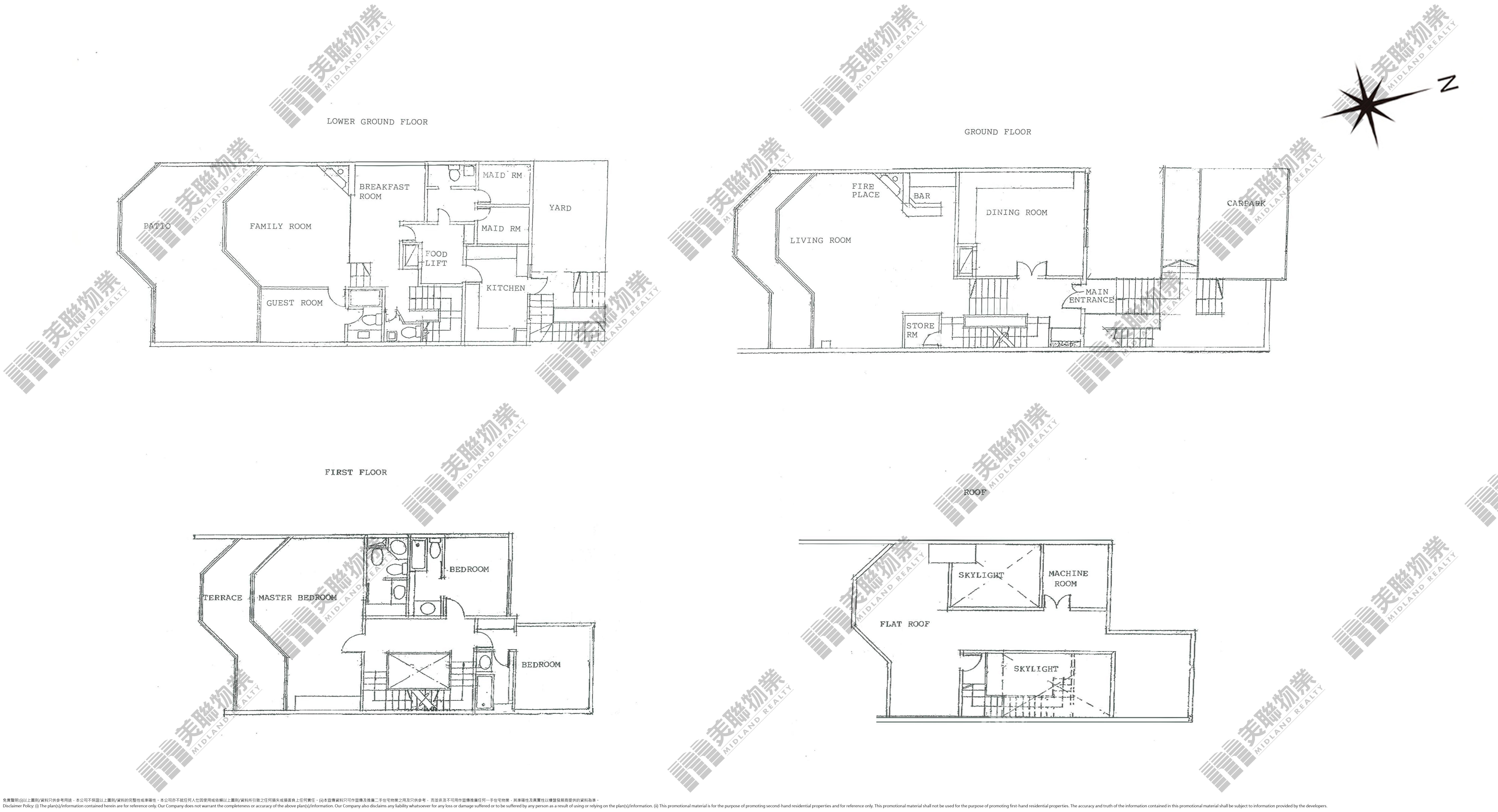
Floor Plan

Transaction History
Contract Date
Price
Price/ft² (SFA)
Price/ft² (GFA)
Change
12/07/21
Price/ft² (SFA)
Price/ft² (GFA)
$438M
$113,149
$104,785
Floor Plan
^ Special transactions