相片
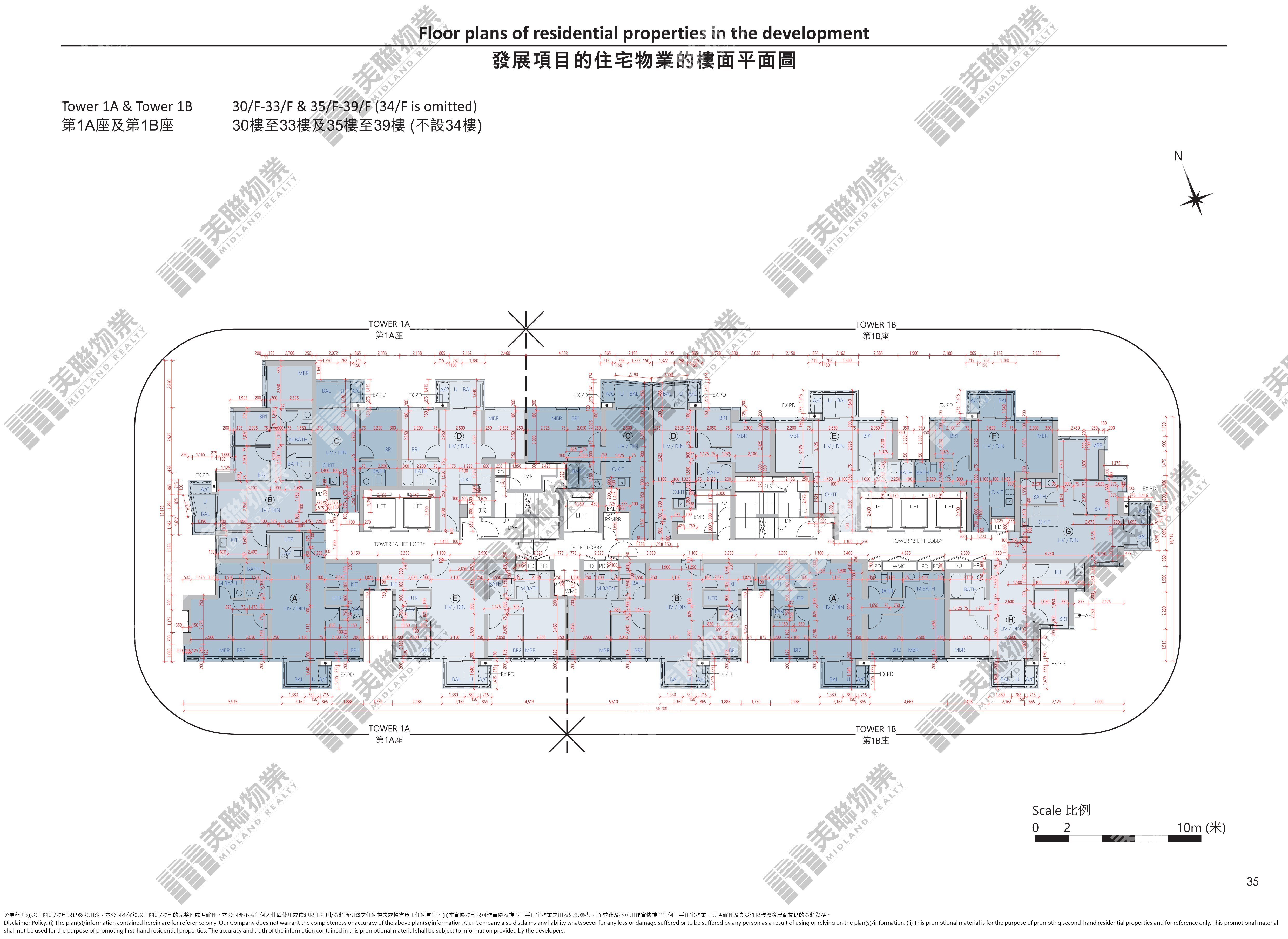
平面图
地图
成交价$1,310万
成交日期: 09/10/2025
实用
750呎
$17,471/呎
小区
3房
<1年
卖方/
卖方的控权公司
卖方:
东展有限公司
华创地产投资有限公司
Smart Beauty Limited
万崇投资有限公司
联趣贸易有限公司
Excel Bid Limited
Ted Show International Limited
Innosafe Company Limited
Already Luck Limited
Apex Fly Limited
Central Winbest Limited
卖方 (东展有限公司) 的控权公司:
华豪投资控股有限公司
精益投资控股有限公司
卖方 (华创地产投资有限公司) 的控权公司:
沛京有限公司
东展有限公司
华豪投资控股有限公司
精益投资控股有限公司
卖方 (Smart Beauty Limited) 的控权公司 东展有限公司:
华豪投资控股有限公司
精益投资控股有限公司
卖方 (万崇投资有限公司) 的控权公司:
Pampas Company Limited
卖方 (联趣贸易有限公司, Excel Bid Limited, Ted Show International Limited, Innosafe Company Limited, Already Luck Limited, Apex Fly Limited, Central Winbest Limited) 的控权公司 :
精益投资控股有限公司
特色
单位历史成交
平面图

单位历史成交
成交日期
成交价
实用呎价
建筑呎价
升跌(较上次)
09/10/25
实用呎价
$1,310万
$17,471
平面图
^ 特殊成交个案