美联信心指数
较上周
NaN%
较上月
NaN%
(01/10/2025)
美联集团
工商铺
内地房产
澳⻔房产
金融服务
移民顾问
按揭转介
信贷服务
美联会
美联信心指数
较上周
NaN%
较上月
NaN%
(01/10/2025)
登入
注册
简中
HKD
ft²
主页
成交
天峦
天峦
I期
库尔大道15号
注册处成交
一手
location
北区豪宅 古洞路28号
分享给朋友
注册日期: 26/10/2010
注册处成交
一手
相片
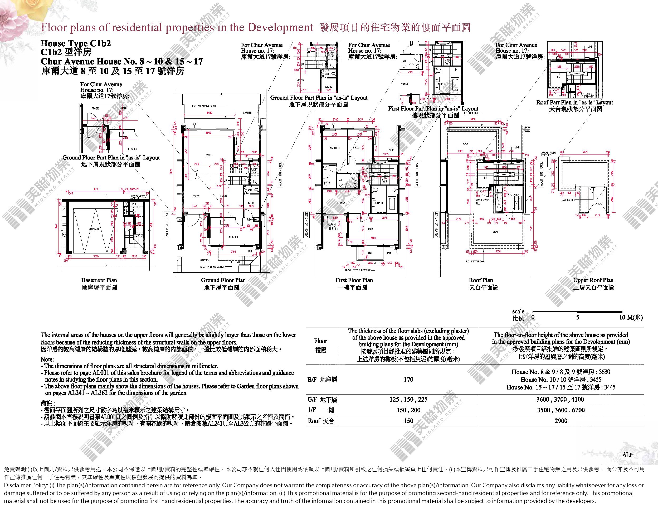
平面图
地图
主页
成交
天峦
天峦
I期
库尔大道15号
注册处成交
一手
location
北区豪宅 古洞路28号
分享给朋友
注册日期: 26/10/2010
注册处成交
一手
分享给朋友
成交价
$3,285
万
注册日期: 26/10/2010
实用
2,009呎
$16,353/呎
小区
天峦
I期
3房
15.8年
卖方/ 卖方的控权公司
卖方 兆兴投资有限公司 卖方的控权公司 Ximston Finance S.A. Sunrise Holdings Inc. 新鸿基地产发展有限公司
特色
连花园
连天台
连阳台
单位历史成交
平面图
单位历史成交
成交日期
成交价
实用呎价
建筑呎价
升跌(较上次)
26/10/10
实用呎价
$3,285万
$16,353
平面图
^ 特殊成交个案
成交纪录
同小区
同期数
同区
全栋成交纪录
更多成交纪录
我要放盘