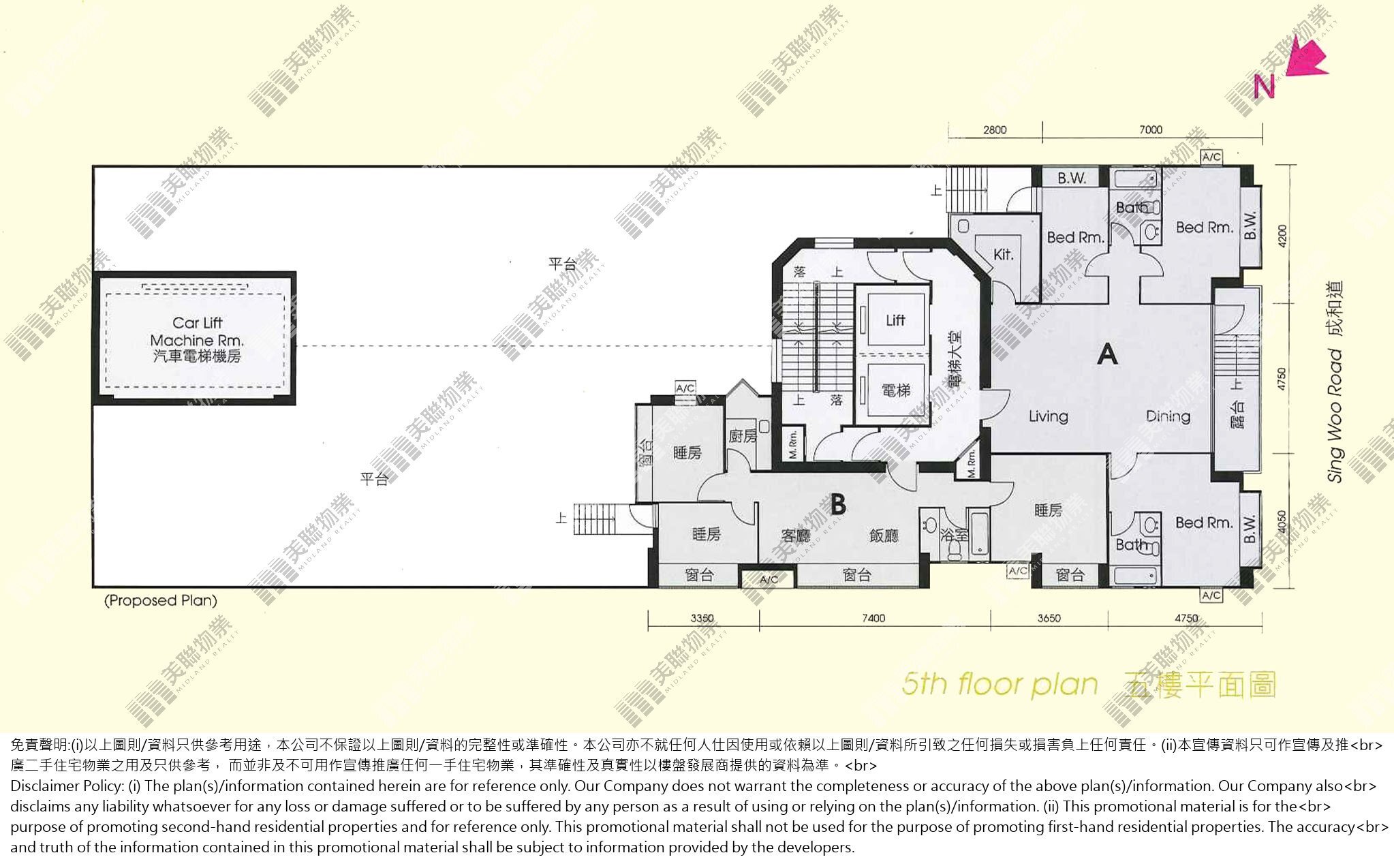
Le Cachet
5/F
Flat B
Land Reg.
location
69 Sing Woo Road, Happy Valley
Reg. Date: 12/04/2019
Land Reg.
Photo
Map
Le Cachet
5/F
Flat B
Land Reg.
location
69 Sing Woo Road, Happy Valley
Reg. Date: 12/04/2019
Land Reg.
Price$10.88M
Reg. Date: 12/04/2019
SFA:
602ft²
$18,073/ft²
GFA:
854ft²
$12,740/ft²
Estate
2Room(s)
70%
24.4 Year(s)
Vendor /
Holding company of the Vendor
Vendor:
K. Wah International Holdings Limited
Feature
Transaction History
Floor Plan

Transaction History
Contract Date
Price
Price/ft² (SFA)
Price/ft² (GFA)
Change
12/04/19
Price/ft² (SFA)
Price/ft² (GFA)
$10.88M
$18,073
$12,740
87.6%
20/06/06
Price/ft² (SFA)
Price/ft² (GFA)
$5.8M
$9,635
$6,792
28.9%
13/05/02
Price/ft² (SFA)
Price/ft² (GFA)
$4.5M
$7,475
$5,269
Floor Plan
^ Special transactions