Full Harvest Building
1/F
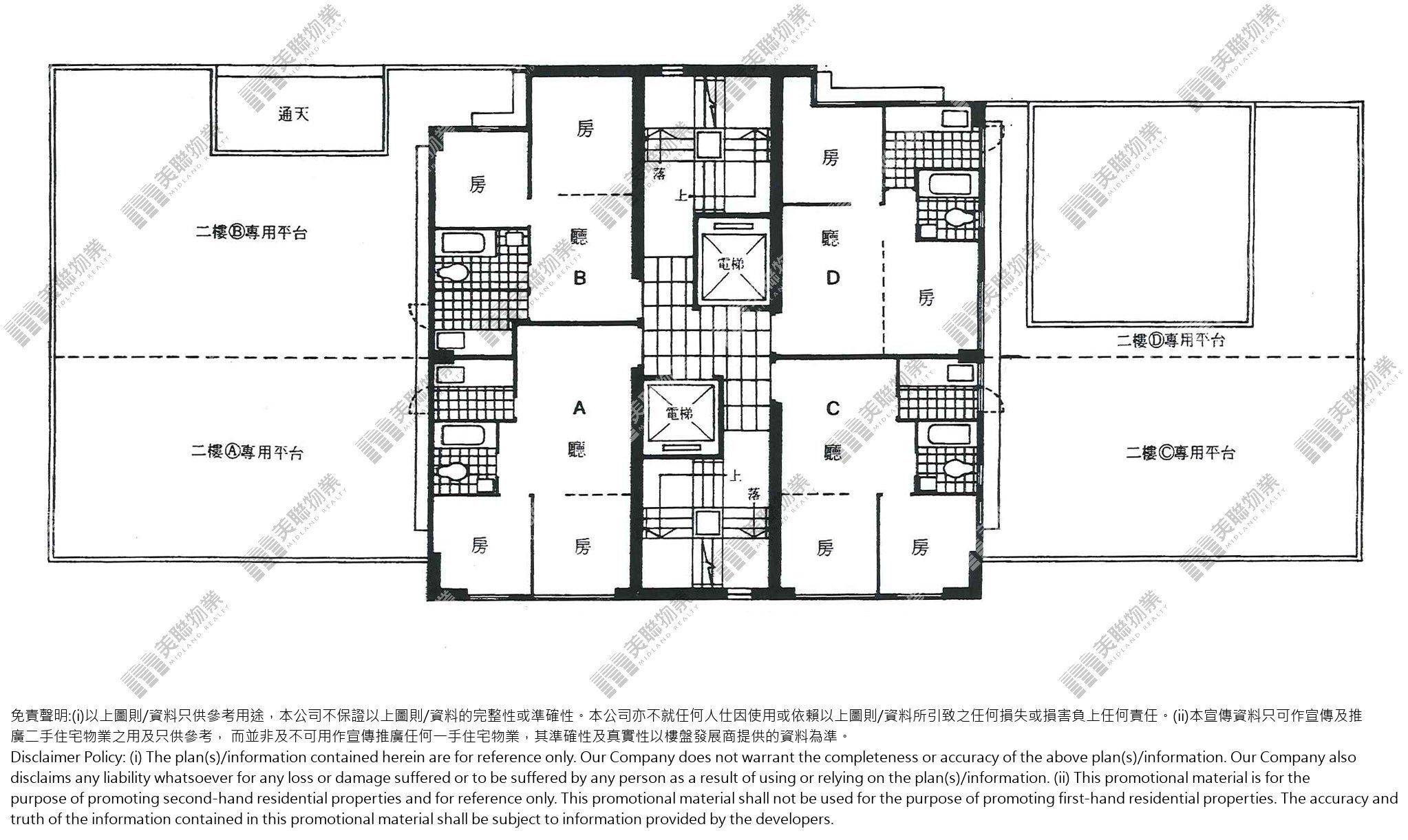
Flat D
Land Reg.
location
6-18 Hau Wo Street, Kennedy Town
Reg. Date: 20/11/2024
Land Reg.
Photo
Map
Full Harvest Building
1/F
Flat D
Land Reg.
location
6-18 Hau Wo Street, Kennedy Town
Reg. Date: 20/11/2024
Land Reg.
Price$3M
Reg. Date: 20/11/2024
SFA:
269ft²
$11,152/ft²
Estate
2Room(s)
41.2 Year(s)
Feature
Transaction History
Floor Plan

Transaction History
Contract Date
Price
Price/ft² (SFA)
Price/ft² (GFA)
Change
20/11/24
Price/ft² (SFA)
$3M
$11,152
-43.4%
30/05/19
Price/ft² (SFA)
$5.3M
$19,703
68.3%
06/05/15
Price/ft² (SFA)
$3.15M
$11,710
306.4%
30/09/06
Price/ft² (SFA)
$775,000
$2,881
-41.7%
24/04/97
Price/ft² (SFA)
$1.33M
$4,944
Floor Plan
^ Special transactions