Yoo 18 Bonham
25&26/F
Flat -
Land Reg.
Firsthand
location
18 Bonham Road, Mid-Levels West
Reg. Date: 28/01/2019
Land Reg.
Firsthand
Photo
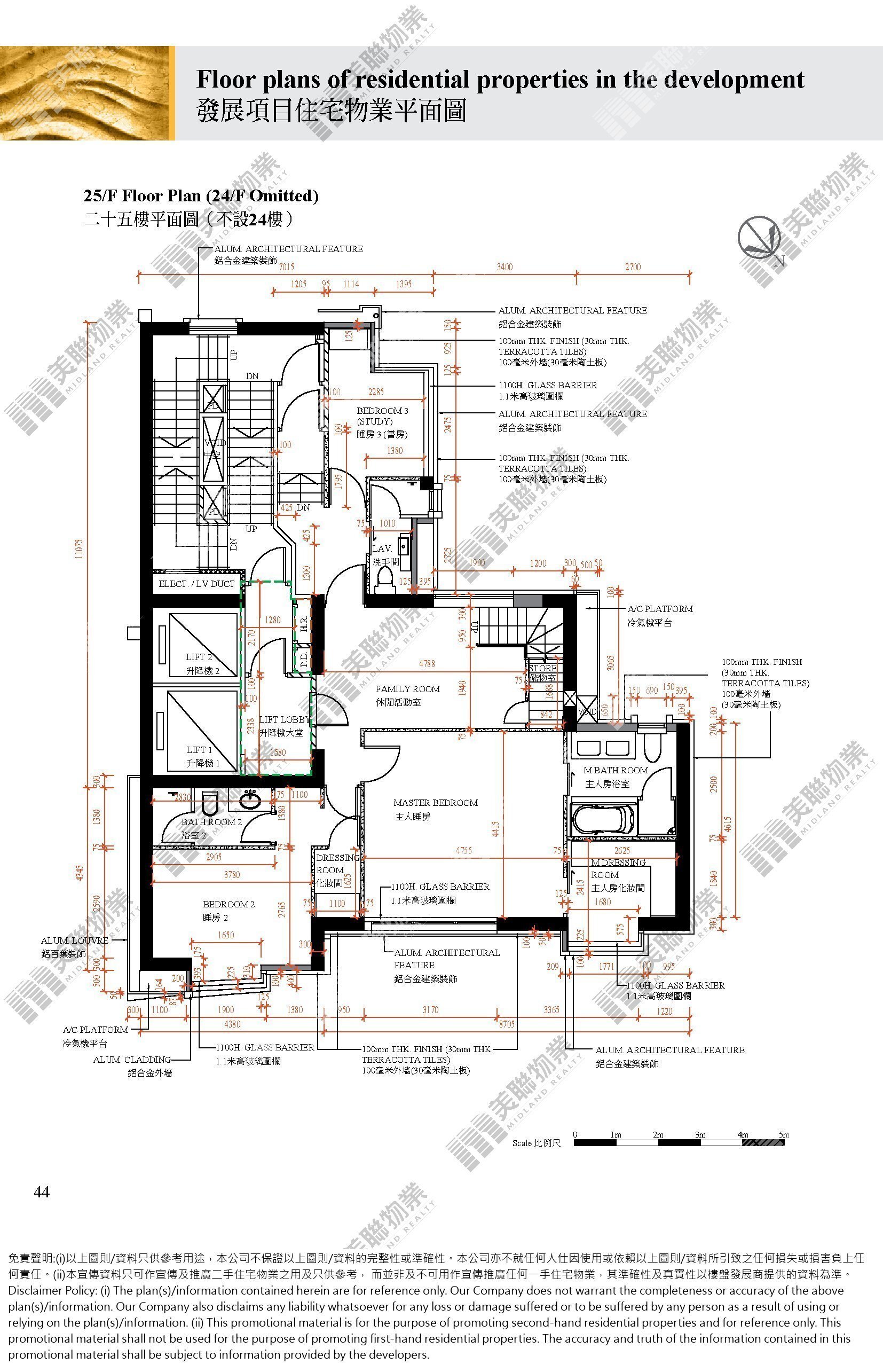
Floor Plan
Map
Yoo 18 Bonham
25&26/F
Flat -
Land Reg.
Firsthand
location
18 Bonham Road, Mid-Levels West
Reg. Date: 28/01/2019
Land Reg.
Firsthand
Price$129M
Reg. Date: 28/01/2019
SFA:
2,499ft²
$51,621/ft²
Estate
3Room(s)
13.7 Year(s)
Feature
Transaction History
Floor Plan

Transaction History
Contract Date
Price
Price/ft² (SFA)
Price/ft² (GFA)
Change
28/01/19
Price/ft² (SFA)
$129M
$51,621
Floor Plan
^ Special transactions