Yoo 18 Bonham
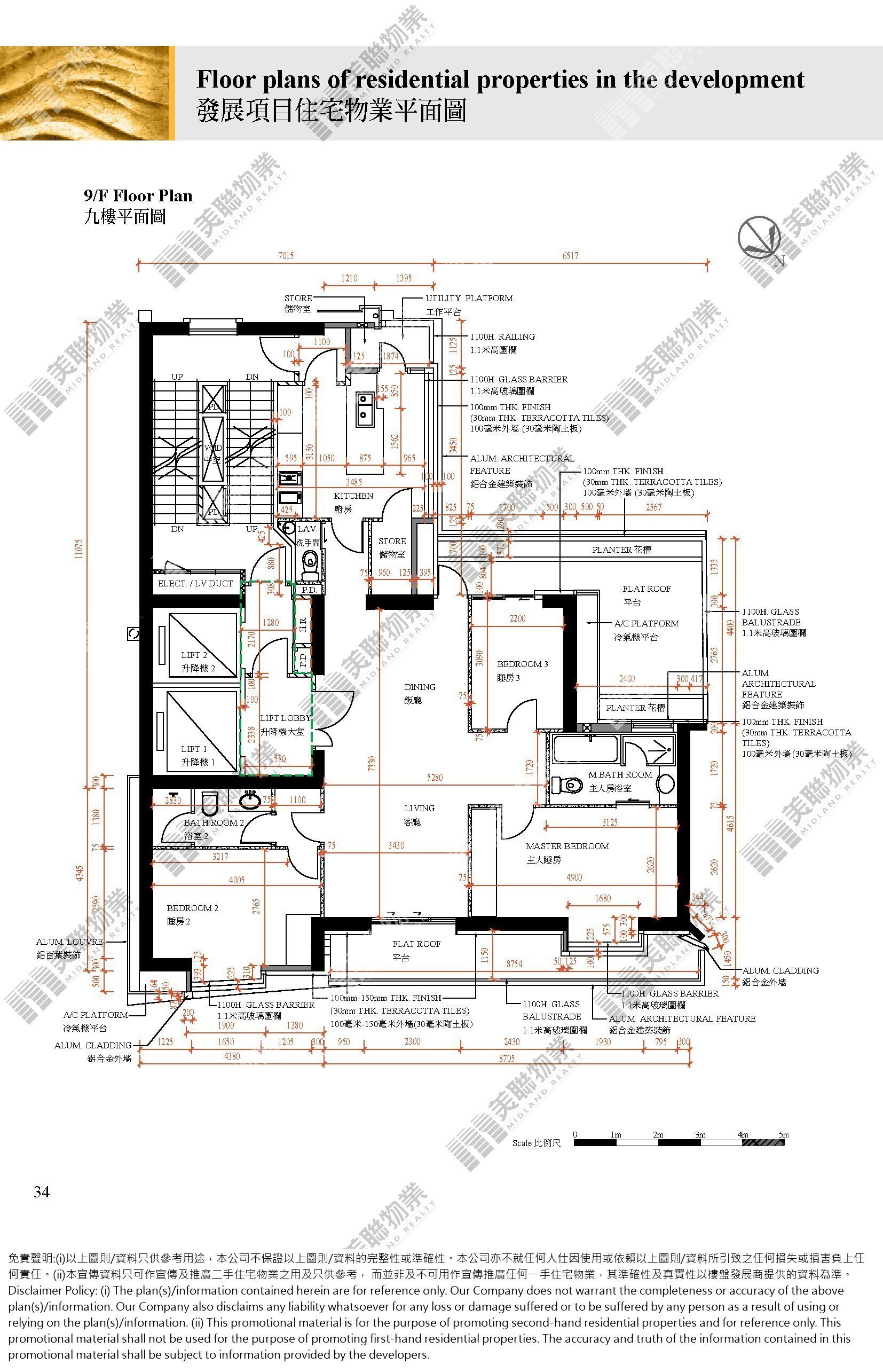
9/F
Flat -
Land Reg.
Firsthand
location
18 Bonham Road, Mid-Levels West
Reg. Date: 25/05/2020
Land Reg.
Firsthand
Photo
Floor Plan
Map
Yoo 18 Bonham
9/F
Flat -
Land Reg.
Firsthand
location
18 Bonham Road, Mid-Levels West
Reg. Date: 25/05/2020
Land Reg.
Firsthand
Transaction History
Floor Plan

Transaction History
Contract Date
Price
Price/ft² (SFA)
Price/ft² (GFA)
Change
25/05/20
Price/ft² (SFA)
$36M
$29,316
Floor Plan
^ Special transactions