Yoo 18 Bonham
11/F
Flat -
Land Reg.
Firsthand
location
18 Bonham Road, Mid-Levels West
Reg. Date: 11/06/2020
Land Reg.
Firsthand
Photo
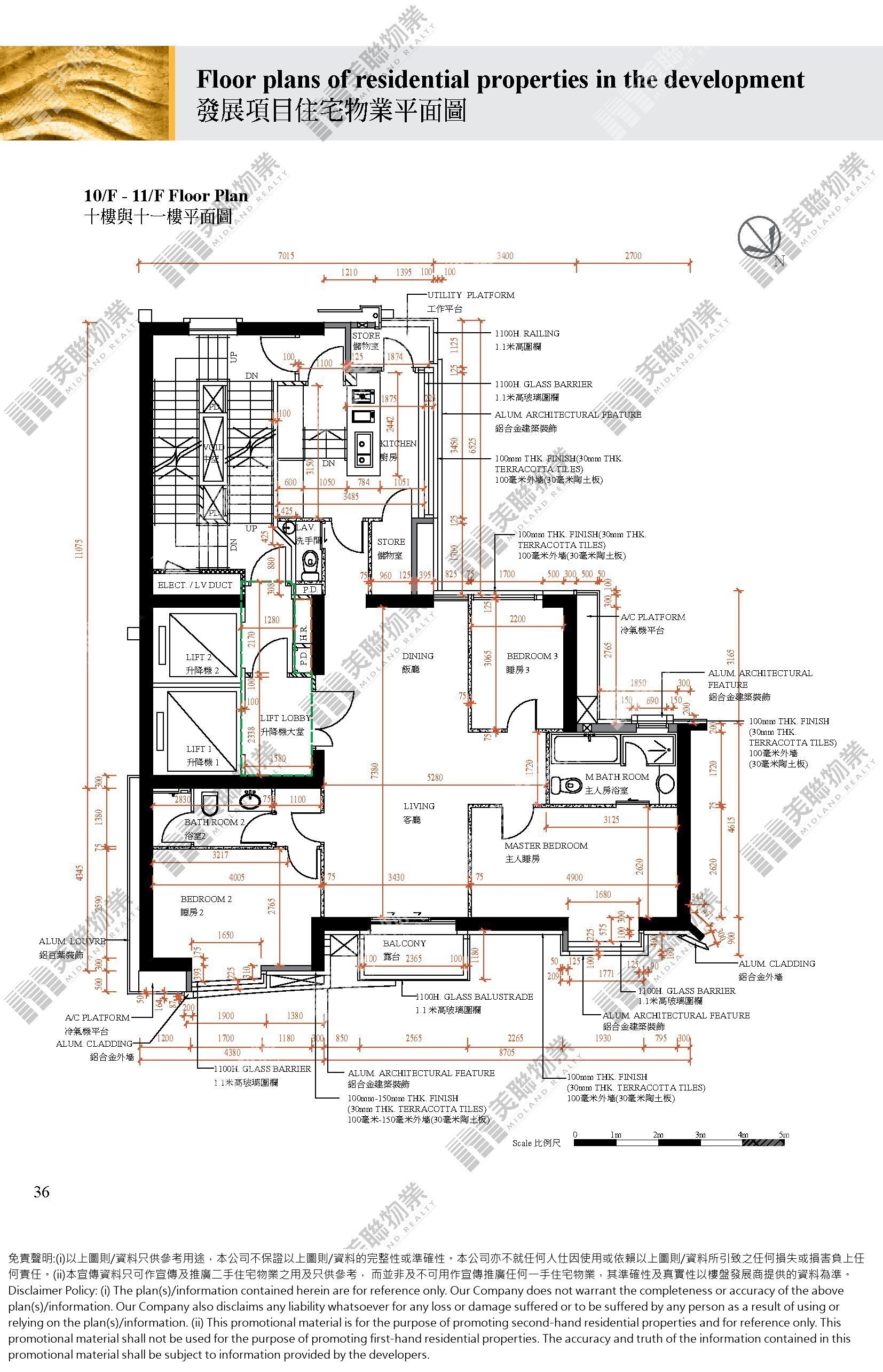
Floor Plan
Map
Yoo 18 Bonham
11/F
Flat -
Land Reg.
Firsthand
location
18 Bonham Road, Mid-Levels West
Reg. Date: 11/06/2020
Land Reg.
Firsthand
Transaction History
Floor Plan

Transaction History
Contract Date
Price
Price/ft² (SFA)
Price/ft² (GFA)
Change
11/06/20
Price/ft² (SFA)
$43M
$34,073
Floor Plan
^ Special transactions