Splendour Villa
2/F
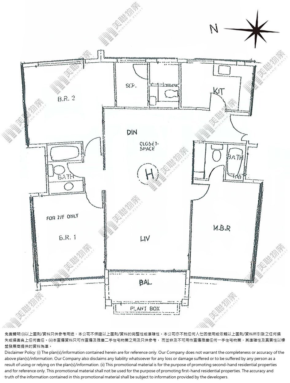
Flat H
Land Reg.
location
10 South Bay Road, South Bay / Headland Road
Reg. Date: 21/06/2021
Land Reg.
Photo
Map
Splendour Villa
2/F
Flat H
Land Reg.
location
10 South Bay Road, South Bay / Headland Road
Reg. Date: 21/06/2021
Land Reg.
Transaction History
Floor Plan

Transaction History
Contract Date
Price
Price/ft² (SFA)
Price/ft² (GFA)
Change
21/06/21
Price/ft² (SFA)
$42.8M
$34,684
47.6%
05/12/07
Price/ft² (SFA)
$29M
$23,501
83.5%
31/03/00
Price/ft² (SFA)
$15.8M
$12,804
-14.6%
17/01/97
Price/ft² (SFA)
$18.5M
$14,992
04/01/97
Price/ft² (SFA)
$18.5M
$14,992
Floor Plan
^ Special transactions