In One
Phase Ia (In One Above)
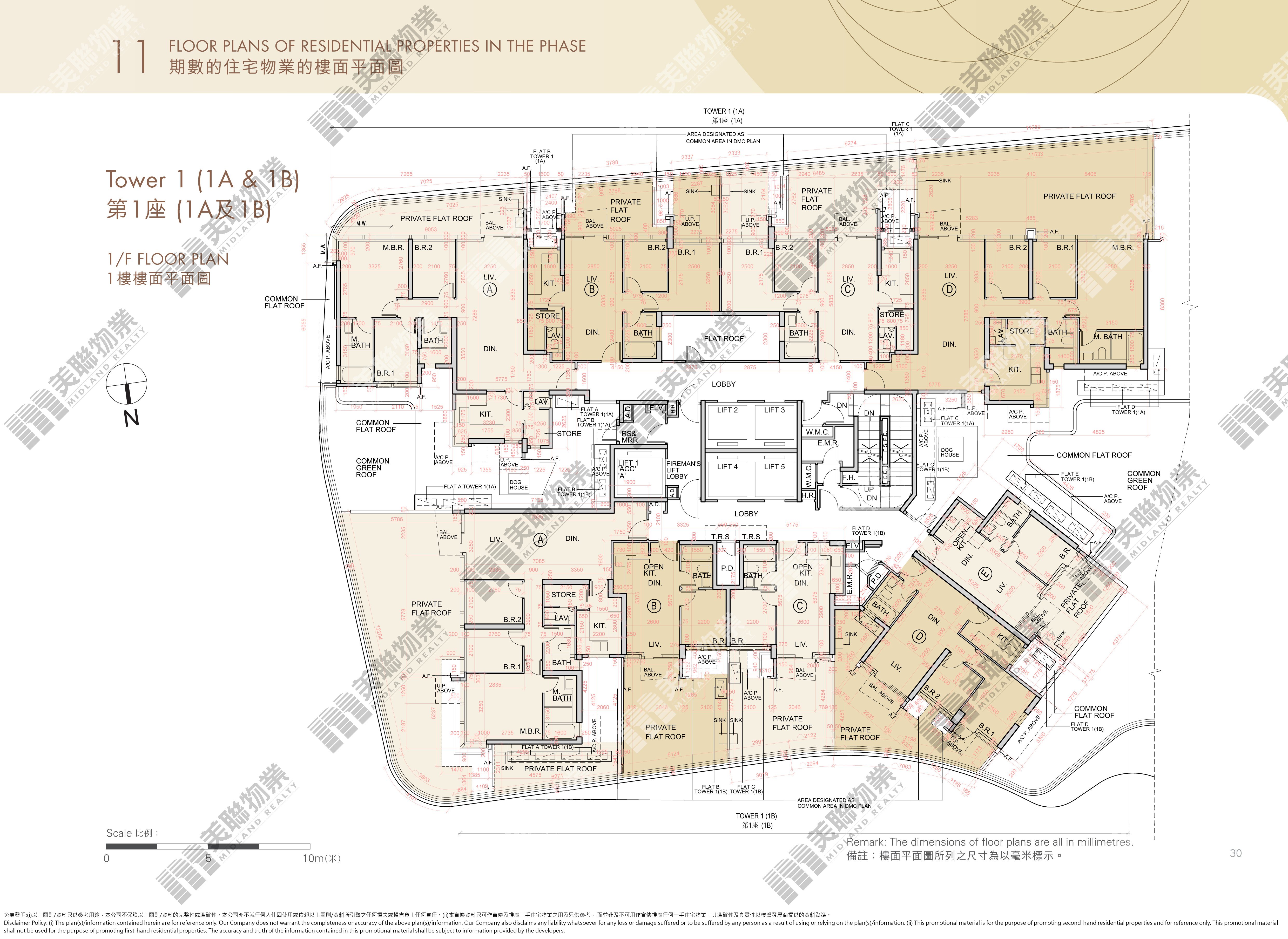
Tower 1A
1/F
Flat B
Reg. of Trans.
Firsthand
location
1 Chung Hau Street, Ho Man Tin
Contract Date: 20/10/2025
Reg. of Trans.
Firsthand
Photo
Floor Plan
Map
In One
Phase Ia (In One Above)
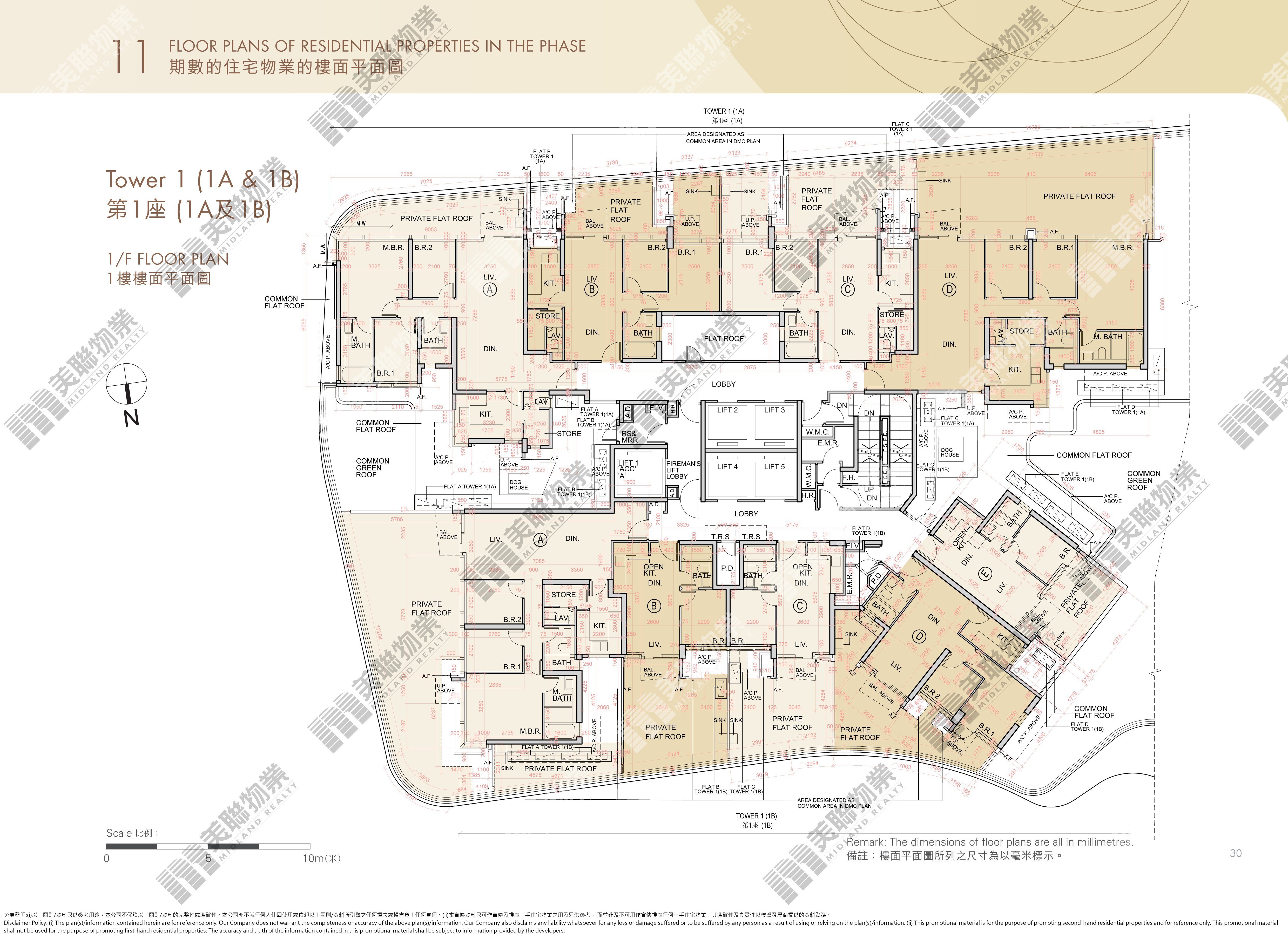
Tower 1A
1/F
Flat B
Reg. of Trans.
Firsthand
location
1 Chung Hau Street, Ho Man Tin
Contract Date: 20/10/2025
Reg. of Trans.
Firsthand
Price$16.6M
Contract Date: 20/10/2025
SFA:
548ft²
$30,292/ft²
Estate
In OnePhase Ia (In One Above)
2Room(s)
<1 Year(s)
Vendor /
Holding company of the Vendor
Vendor:
MTR Corporation Limited (As “Owner”)1
Grace Castle Corporation Limited (As “Person So Engaged”)2
Notes:
1. “Owner” Means The Legal Or Beneficial Owner Of The Residential Properties In The Phase.
2. “Person So Engaged” Means The Person Who Is Engaged By The Owner To Co-Ordinate And Supervise
The Process Of Designing, Planning, Constructing, Fitting Out, Completing And Marketing The Phase.
Holding Company Of The Vendor:
Holding Company Of The Owner: Not Applicable
Holding Companies Of The Person So Engaged:
Chinachem Properties Holding Company Limited
Chinachem Group Holdings Limited
Transaction History
Floor Plan

Transaction History
Contract Date
Price
Price/ft² (SFA)
Price/ft² (GFA)
Change
20/10/25
Price/ft² (SFA)
$16.6M
$30,292
Floor Plan
^ Special transactions