The Austin
Tower 5 - T5A
12/F
Flat C
Land Reg.
location
8 Wui Cheung Road, Kowloon Station
Reg. Date: 04/08/2025
Land Reg.
Photo
Estate Video
Map
The Austin
Tower 5 - T5A
12/F
Flat C
Land Reg.
location
8 Wui Cheung Road, Kowloon Station
Reg. Date: 04/08/2025
Land Reg.
Price$10.78M
Reg. Date: 04/08/2025
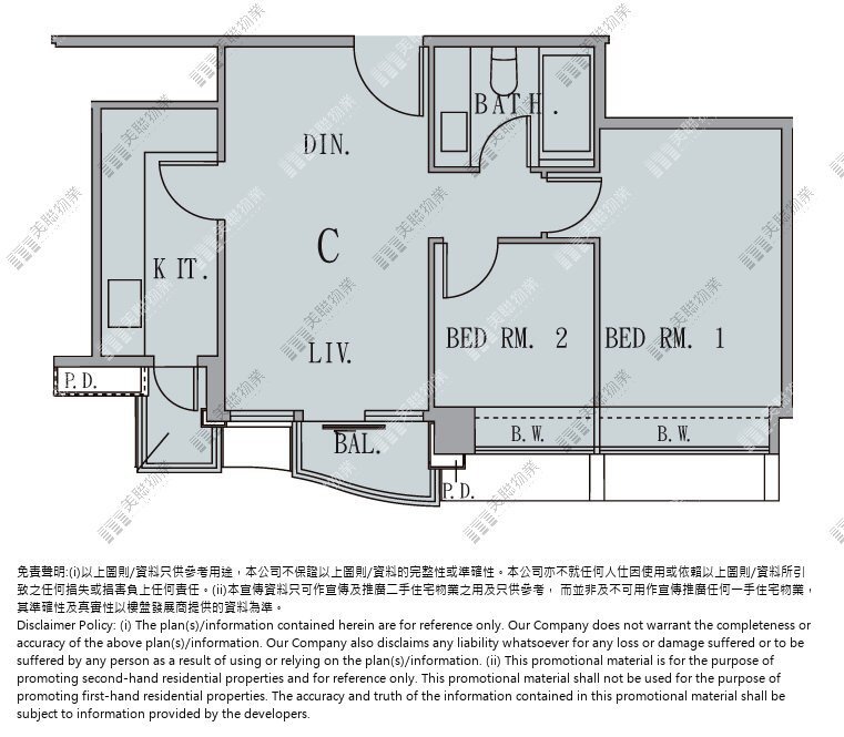
SFA:
520ft²
$20,731/ft²
Estate
2Room(s)
North
11 Year(s)
Vendor /
Holding company of the Vendor
Vendor
MTR Corporation Limited (As "Owner" )
Fast New Limited (As "Person So Engaged")
(Note: "Owner" Means The Legal Or Beneficial Owner Of The Phase, And "Person So Engaged" Means The Person Who Is Engaged By The Owner To Co-Ordinate And Supervise The Process Of Designing, Planning, Constructing, Fitting Out, Completing And Marketing The Phase).
Feature
Transaction History
Floor Plan

Transaction History
Contract Date
Price
Price/ft² (SFA)
Price/ft² (GFA)
Change
04/08/25
Price/ft² (SFA)
$10.78M
$20,731
20.9%
21/11/13
Price/ft² (SFA)
$8.92M
$17,154
Floor Plan
^ Special transactions