Sunderland Estate
House 110
Land Reg.
location
1 Hereford Road, Kowloon Tong
Reg. Date: 03/12/2024
Land Reg.
Photo
Map
Sunderland Estate
House 110
Land Reg.
location
1 Hereford Road, Kowloon Tong
Reg. Date: 03/12/2024
Land Reg.
Price$50.67M
Reg. Date: 03/12/2024
SFA:
2,822ft²
$17,955/ft²
Estate
3Room(s)
42.5 Year(s)
Vendor /
Holding company of the Vendor
Vendor
Hang Lung Group Limited
Feature
Transaction History
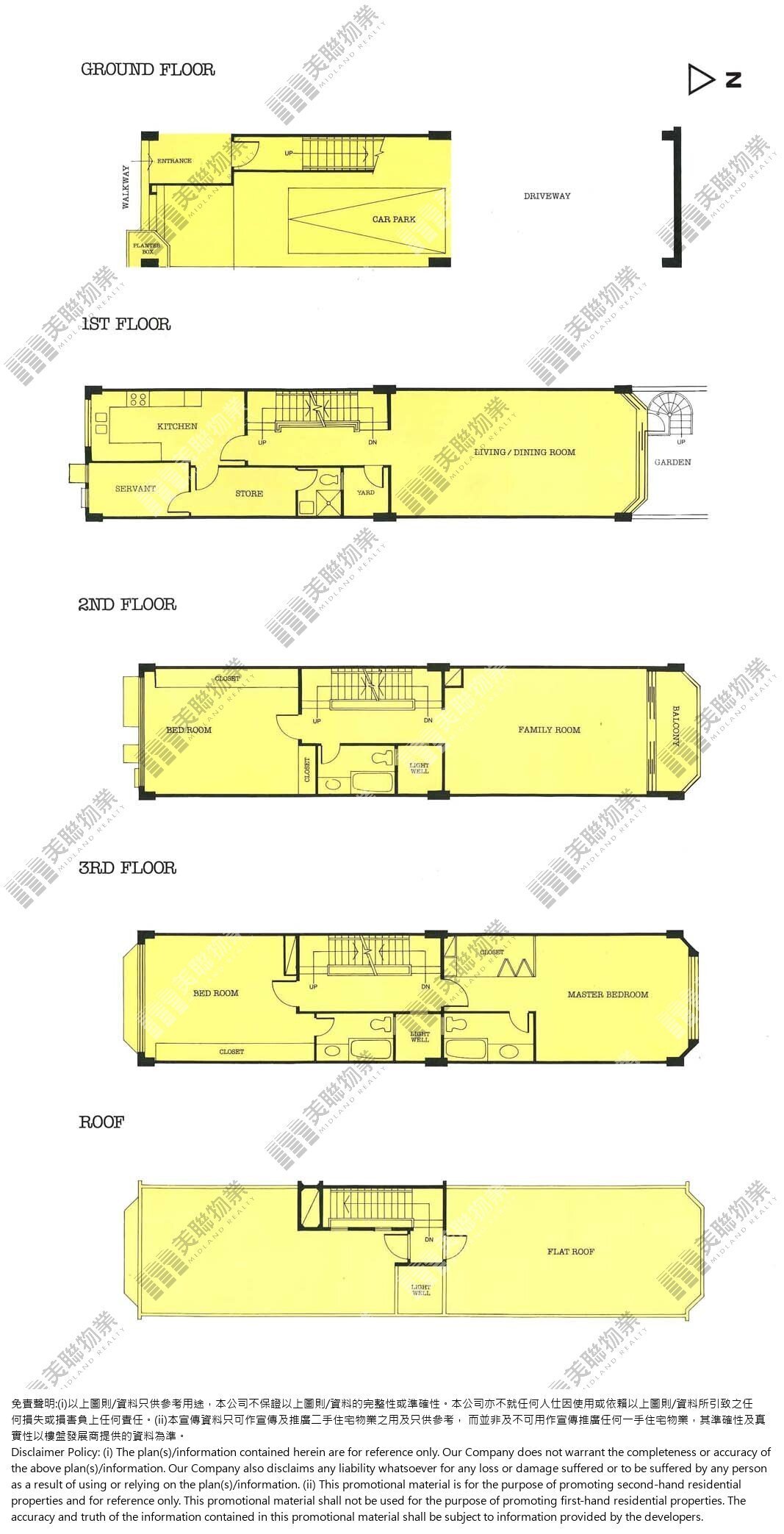
Floor Plan

Transaction History
Contract Date
Price
Price/ft² (SFA)
Price/ft² (GFA)
Change
03/12/24
Price/ft² (SFA)
$50.67M
$17,955
Floor Plan
^ Special transactions