High Park
Higher Floor
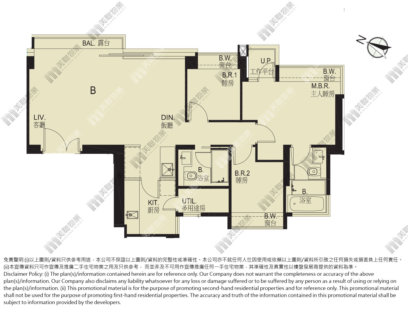
Flat B
Transaction
location
51 Boundary Street, Sham Shui Po
Contract Date: 11/08/2025
Transaction
Photo
Floor Plan
Map
High Park
Higher Floor
Flat B
Transaction
location
51 Boundary Street, Sham Shui Po
Contract Date: 11/08/2025
Transaction
Rent$39,800
Contract Date: 11/08/2025
SFA:
783ft²
$51/ft²
Estate
3Room(s)
10.6 Year(s)
Vendor /
Holding company of the Vendor
Vendor
Triple Glory Limited (Also As The Owner And Whose Holding Companies Are Henderson Development Limited, Henderson Land Development Company Limited, Migtymark Investment Limited, Good Time Limited And Broadwin Int'L Limited)
Feature
Transaction History
Floor Plan

Transaction History
Contract Date
Price
Price/ft² (SFA)
Price/ft² (GFA)
Change
16/09/15
Price/ft² (SFA)
$16.34M
$20,872
Floor Plan
^ Special transactions