PHOENEXT
28/F
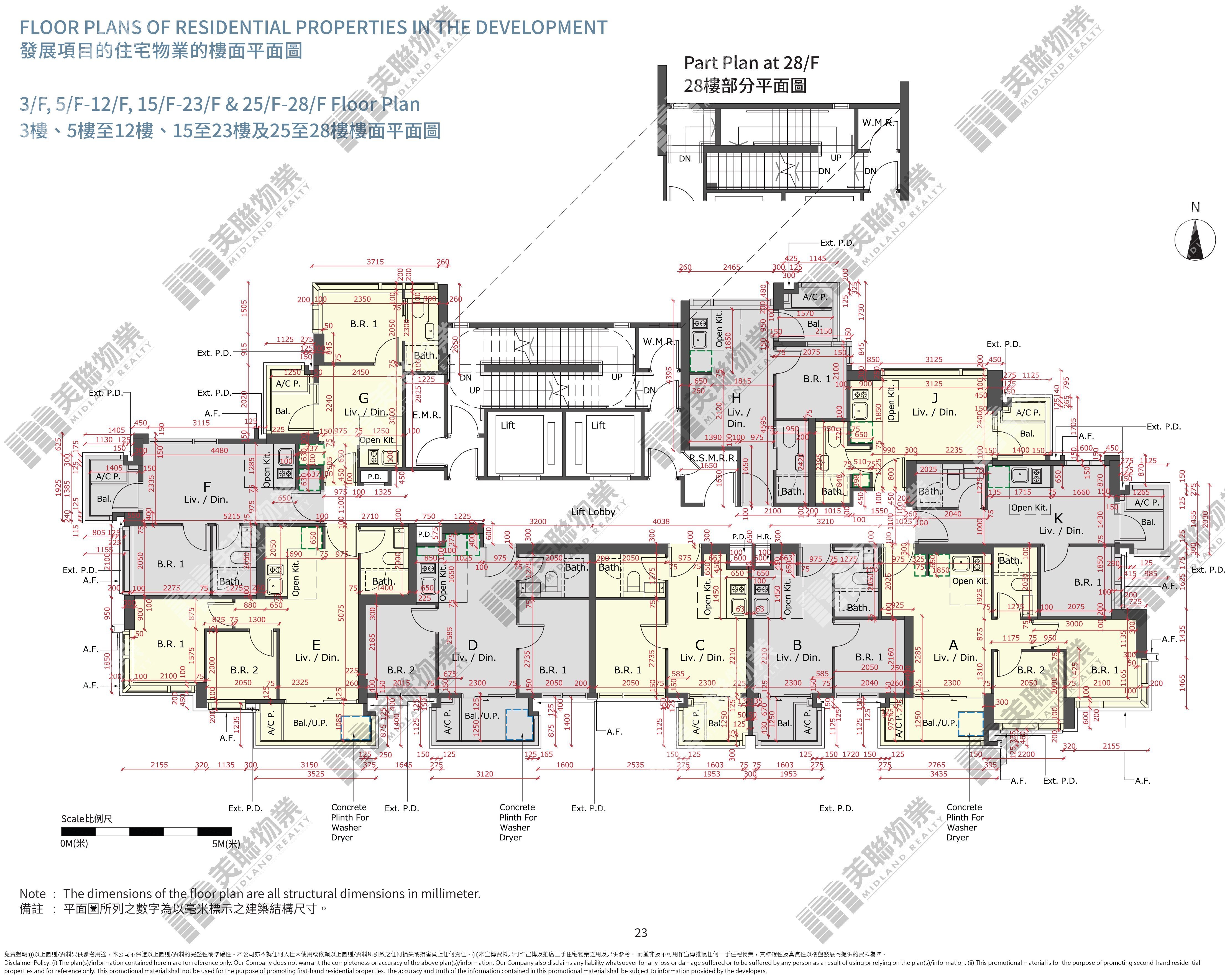
Flat K
Reg. of Trans.
Firsthand
location
28 Ming Fung Street, Wong Tai Sin
Contract Date: 04/10/2025
Reg. of Trans.
Firsthand
Photo
Floor Plan
Map
PHOENEXT
28/F
Flat K
Reg. of Trans.
Firsthand
location
28 Ming Fung Street, Wong Tai Sin
Contract Date: 04/10/2025
Reg. of Trans.
Firsthand
Price$5.09M
Contract Date: 04/10/2025
SFA:
242ft²
$21,025/ft²
Estate
1Room(s)
<1 Year(s)
Vendor /
Holding company of the Vendor
Vendor:
Owner:Joint Hope Limited
Person So Engaged:Wang On Asset Management Limited
Notes:
"Owner" Means The Legal Or Beneficial Owner Of The Residential Properties In The Development.
"Person So Engaged" Means The Person Who Is Engaged By The Owner To Co-Ordinate And Supervise The Process Of Designing, Planning, Constructing, Fitting Out, Completing And Marketing The Development.
Holding Companies Of The Owner (Joint Hope Limited):
Giant Harmony Limited
Pop Prestige Limited
Holding Companies Of The Person So Engaged (Wang On Asset Management Limited):
Wang On Group Limited
Wang On Enterprises (Bvi) Limited
Earnest Spot Limited
Wang On Properties Limited
Miracle Cheer Limited
Sparkle Hope Limited
Zenith Splendid Limited
Trendy Elite Holdings Limited
Mighty Path Developments Limited
Feature
Transaction History
Floor Plan

Transaction History
Contract Date
Price
Price/ft² (SFA)
Price/ft² (GFA)
Change
04/10/25
Price/ft² (SFA)
$5.09M
$21,025
Floor Plan
^ Special transactions