Grand Mayfair I
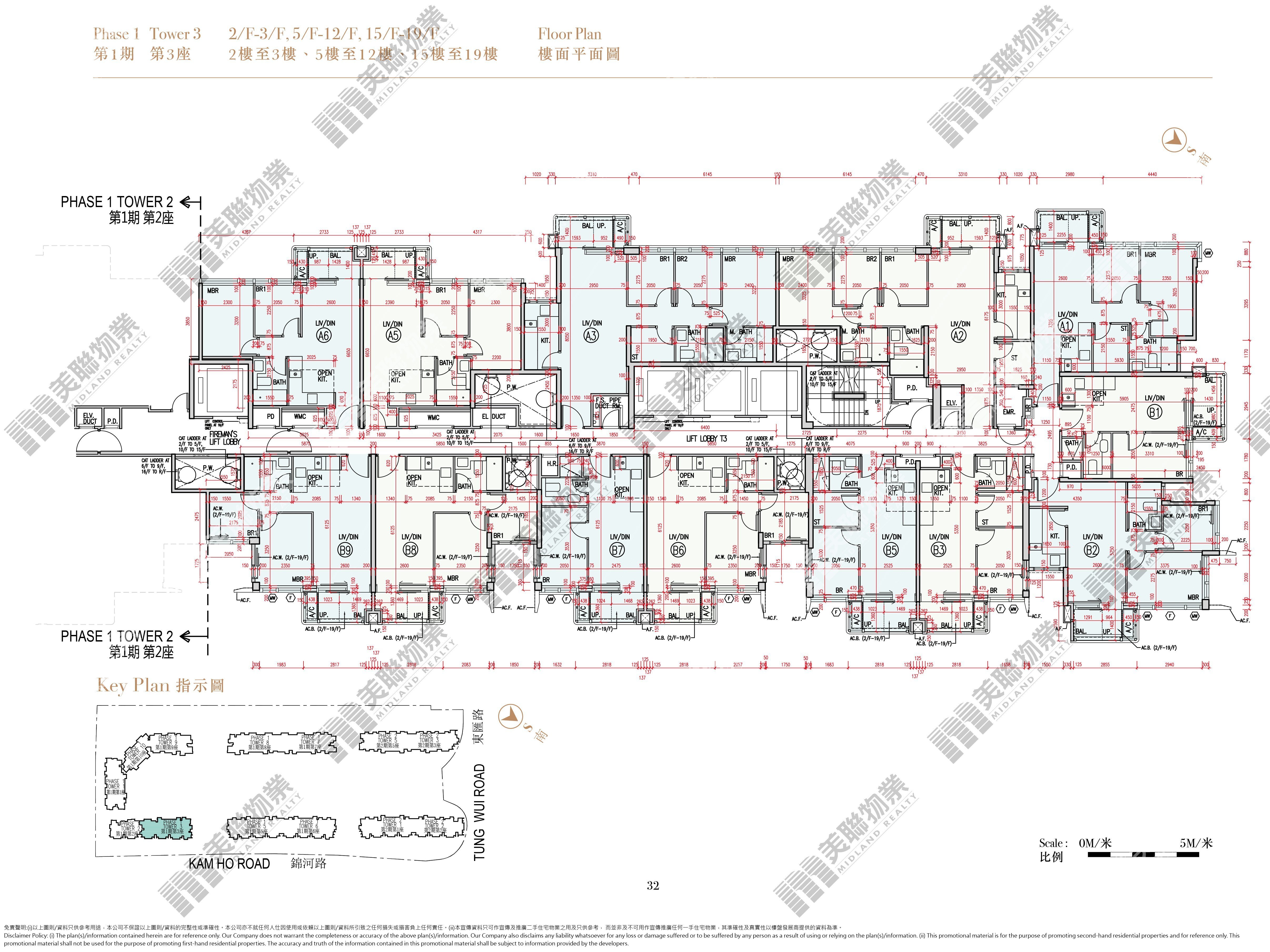
Tower 3
19/F
Flat A6
Land Reg.
Firsthand
location
29 Kam Ho Road, Kam Tin
Reg. Date: 17/10/2025
Land Reg.
Firsthand
Photo
Floor Plan
Map
Grand Mayfair I
Tower 3
19/F
Flat A6
Land Reg.
Firsthand
location
29 Kam Ho Road, Kam Tin
Reg. Date: 17/10/2025
Land Reg.
Firsthand
Price$8.16M
Reg. Date: 17/10/2025
SFA:
462ft²
$17,661/ft²
Estate
Grand MayfairGrand Mayfair I
2Room(s)
1 Year(s)
Vendor /
Holding company of the Vendor
Vendor:
Kam Sheung Property Development Limited (As “Owner”)
Grand Ample Limited (As “Person So Engaged”)
(Notes: “Owner” Means The Legal Or Beneficial Owner Of The Residential Properties In The Phase. “Person So Engaged” Means The Person Who Is Engaged By The Owner To Co-Ordinate And Supervise The Process Of Designing, Planning, Constructing, Fitting Out, Completing And Marketing The Phase.)
Holding Company Of The Vendor (Owner):
West Rail Property Development Limited
Holding Company Of The Vendor (Person So Engaged):
Top Regent Holdings Limited
Feature
Transaction History
Floor Plan

Transaction History
Contract Date
Price
Price/ft² (SFA)
Price/ft² (GFA)
Change
17/10/25
Price/ft² (SFA)
$8.16M
$17,661
Floor Plan
^ Special transactions