Rolling Hills
House 7
Land Reg.
location
8 Hung Fa Hom Road, Northern Lux. Res.
Reg. Date: 12/04/2011
Land Reg.
Photo
Map
Rolling Hills
House 7
Land Reg.
location
8 Hung Fa Hom Road, Northern Lux. Res.
Reg. Date: 12/04/2011
Land Reg.
Price$9.4M
Reg. Date: 12/04/2011
SFA:
1,513ft²
$6,213/ft²
GFA:
1,615ft²
$5,820/ft²
Estate
3Room(s)
94%
25.8 Year(s)
Feature
Transaction History
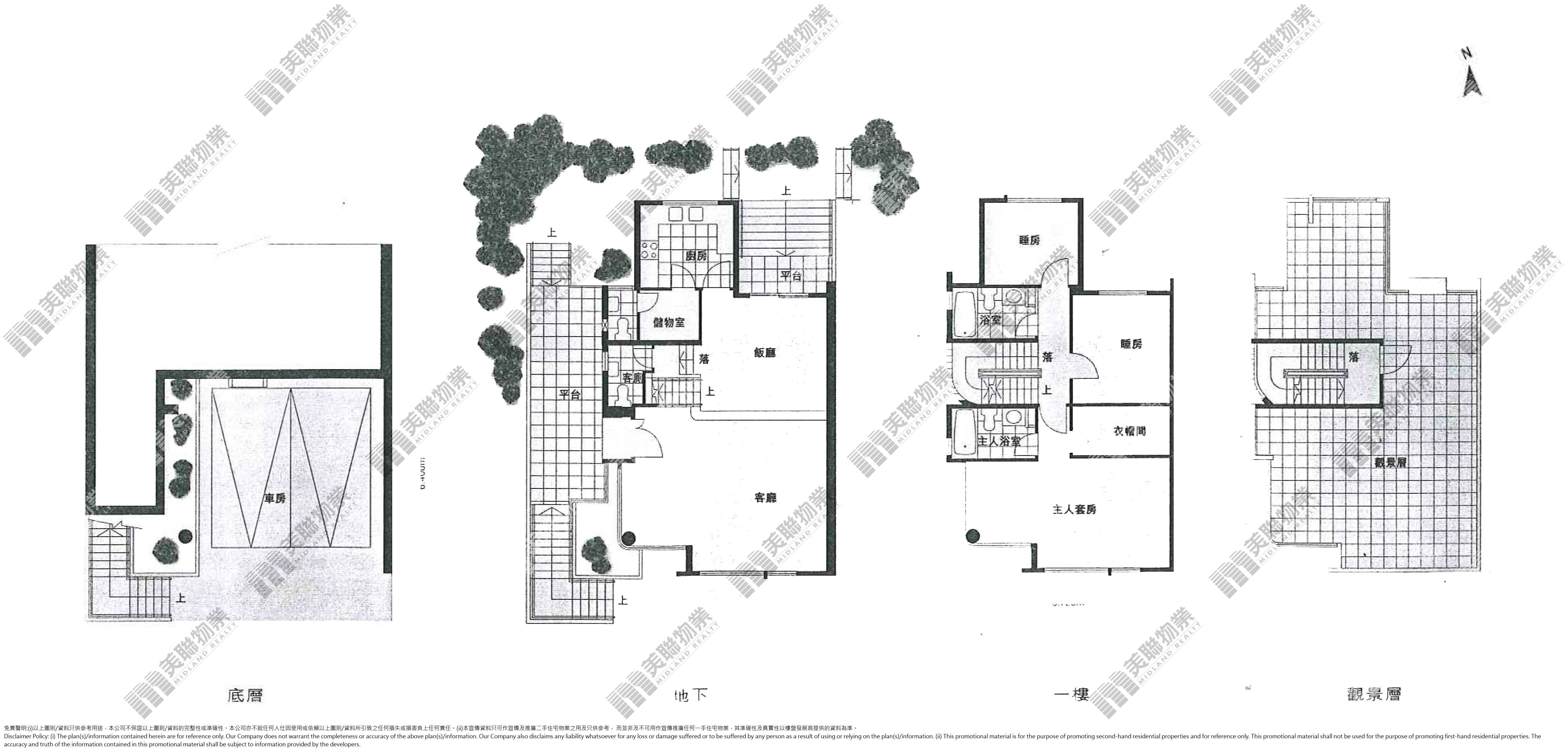
Floor Plan

Transaction History
Contract Date
Price
Price/ft² (SFA)
Price/ft² (GFA)
Change
18/08/17
Price/ft² (SFA)
Price/ft² (GFA)
$17.5M
$11,566
$10,836
86.2%
12/04/11
Price/ft² (SFA)
Price/ft² (GFA)
$9.4M
$6,213
$5,820
Floor Plan
^ Special transactions