NAPA
House C15
Land Reg.
location
88 So Kwun Wat Road, Siu Lam / So Kwun Wat / Castle Peak Bay
Reg. Date: 28/04/2025
Land Reg.
Photo
Estate Video
Map
NAPA
House C15
Land Reg.
location
88 So Kwun Wat Road, Siu Lam / So Kwun Wat / Castle Peak Bay
Reg. Date: 28/04/2025
Land Reg.
Price$22.98M
Reg. Date: 28/04/2025
SFA:
2,113ft²
$10,876/ft²
Estate
3Room(s)
East
8.1 Year(s)
Vendor /
Holding company of the Vendor
Vendor:
Wascott Property Limited
Easy Value Limited
Classic Expert Enterprises Limited
Holding Companies Of The Vendor:
In Respect Of Wascott Property Limited :
Wheelock Properties Limited
Myers Investments Limited
Infinite River Limited
In Respect Of Easy Value Limited :
Easy Value Holdings Limited
First Alpine Investments Limited
Seareef Holdings Limited
Wheelock Properties Limited
Myers Investments Limited
In Respect Of Classic Expert Enterprises Limited :
Classic Expert Holdings Limited
First Alpine Investments Limited
Seareef Holdings Limited
Wheelock Properties Limited
Myers Investments Limited
Feature
Transaction History
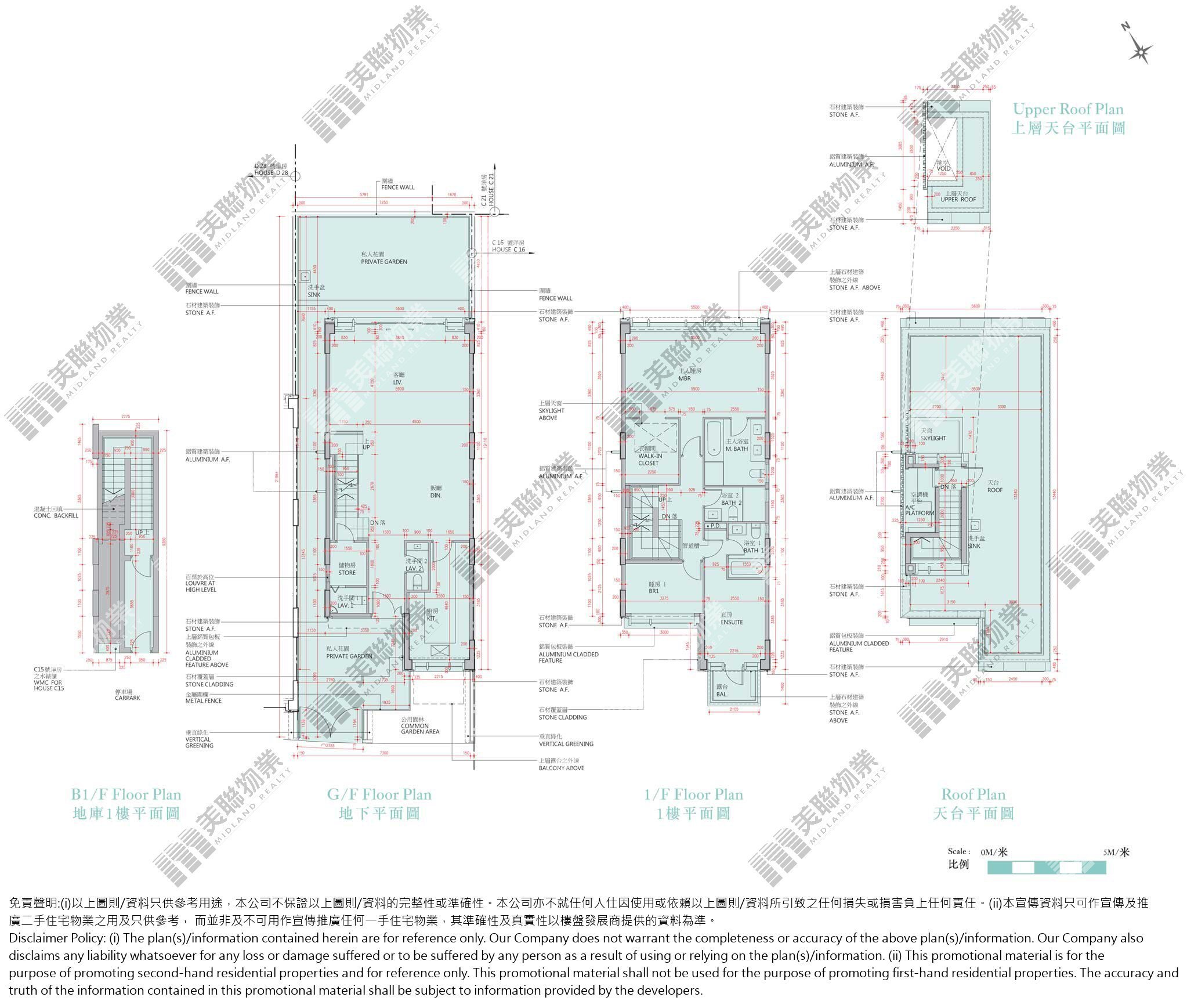
Floor Plan

Transaction History
Contract Date
Price
Price/ft² (SFA)
Price/ft² (GFA)
Change
28/04/25
Price/ft² (SFA)
$22.98M
$10,876
-23.4%
29/03/23
Price/ft² (SFA)
$30M
$14,198
-8.7%
21/11/19
Price/ft² (SFA)
$32.87M
$15,558
Floor Plan
^ Special transactions