The Bloomsway
The Highland
House H17 (The Highland)
Land Reg.
Firsthand
location
29 Tsing Ying Road, Siu Lam / So Kwun Wat / Castle Peak Bay
Reg. Date: 21/09/2020
Land Reg.
Firsthand
Photo
Estate Video
Floor Plan
Map
The Bloomsway
The Highland
House H17 (The Highland)
Land Reg.
Firsthand
location
29 Tsing Ying Road, Siu Lam / So Kwun Wat / Castle Peak Bay
Reg. Date: 21/09/2020
Land Reg.
Firsthand
Price$78.77M
Reg. Date: 21/09/2020
SFA:
2,857ft²
$27,570/ft²
Estate
The BloomswayThe Highland
4Room(s)
8.3 Year(s)
Vendor /
Holding company of the Vendor
Vendor
Senworld Investment Limited
Holding Companies Of The Vendor
Sageman Limited
Goldash Holdings Limited
Kerry Properties (Hong Kong) Limited
Kerry Properties Limited
Kerry Holdings Limited
Kerry Group Limited
Feature
Transaction History
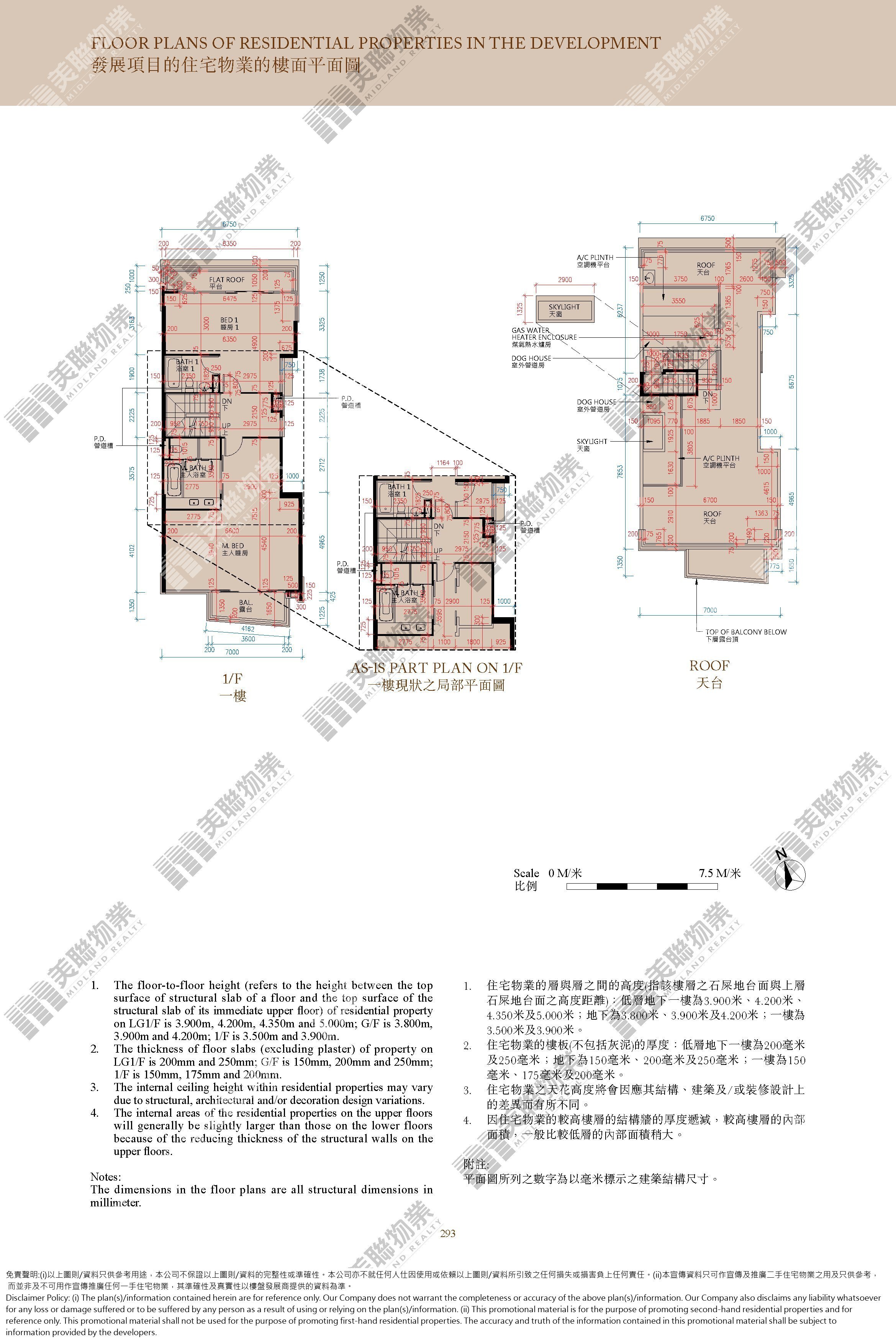
Floor Plan

Transaction History
Contract Date
Price
Price/ft² (SFA)
Price/ft² (GFA)
Change
21/09/20
Price/ft² (SFA)
$78.77M
$27,570
Floor Plan
^ Special transactions