One Hyde Park
8 Kensington Avenue
Land Reg.
location
8 Kensington Avenue, Yuen Long Town Centre
Reg. Date: 09/09/2022
Land Reg.
Photo
Map
One Hyde Park
8 Kensington Avenue
Land Reg.
location
8 Kensington Avenue, Yuen Long Town Centre
Reg. Date: 09/09/2022
Land Reg.
Price$21.88M
Reg. Date: 09/09/2022
SFA:
1,793ft²
$12,203/ft²
Estate
16.4 Year(s)
Vendor /
Holding company of the Vendor
Vendor
Yue Bloom Limited
Sun Hung Kai Properties Limited
Feature
Transaction History
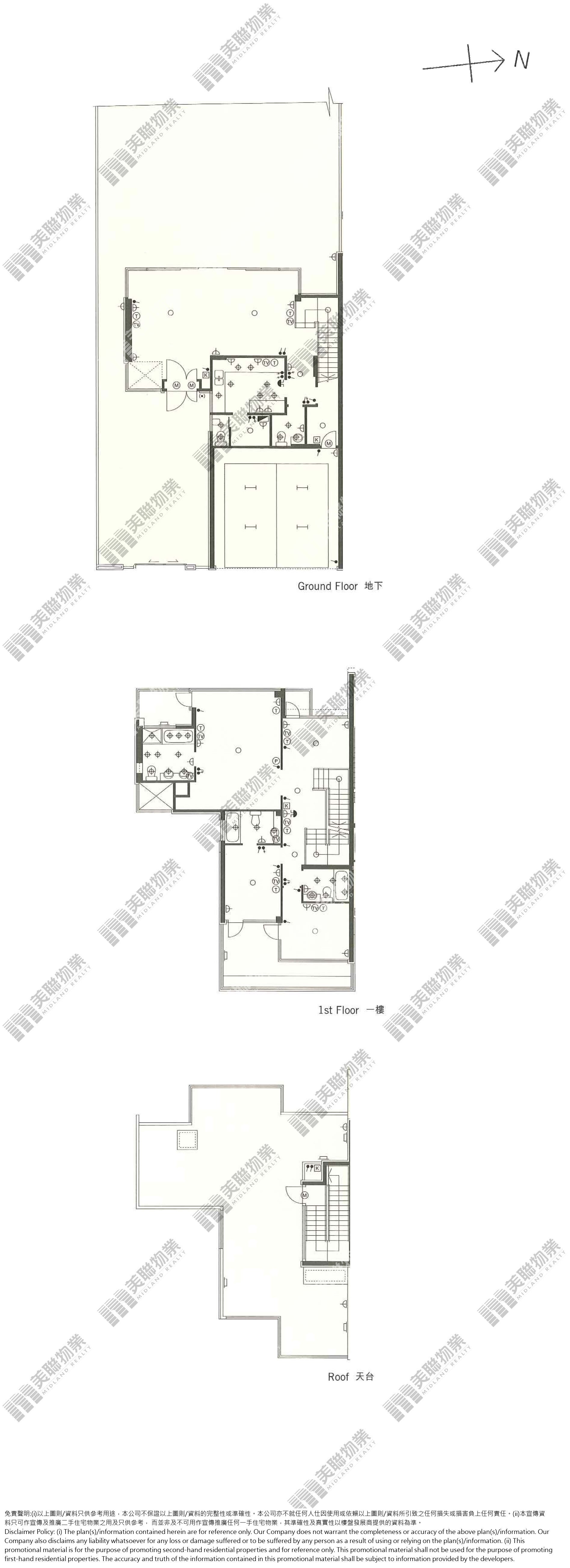
Floor Plan

Transaction History
Contract Date
Price
Price/ft² (SFA)
Price/ft² (GFA)
Change
09/09/22
Price/ft² (SFA)
$21.88M
$12,203
25.0%
22/11/13
Price/ft² (SFA)
$17.5M
$9,760
34.6%
27/03/09
Price/ft² (SFA)
$13M
$7,250
Floor Plan
^ Special transactions