相片
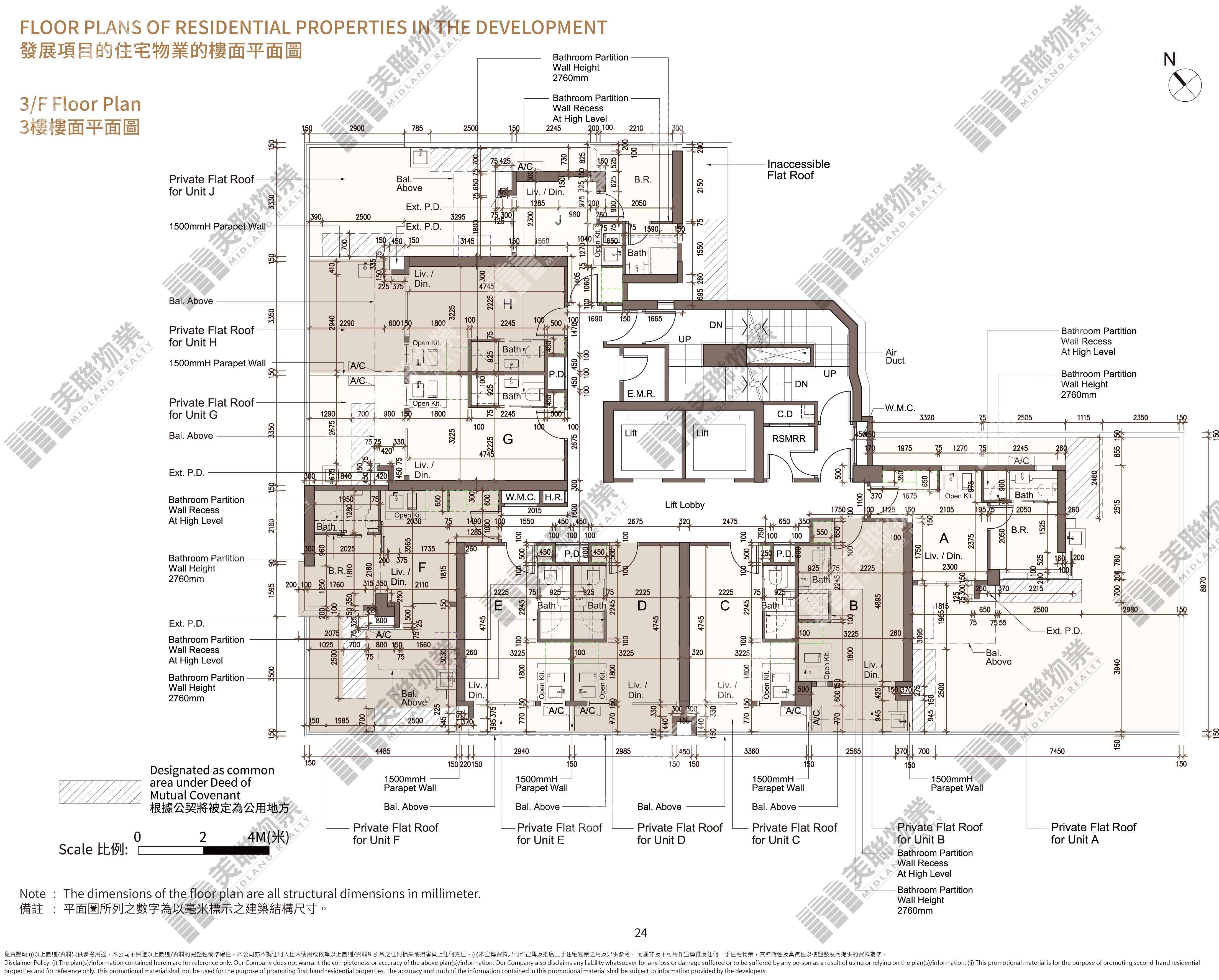
平面圖
地圖
成交價$460萬
註冊日期: 13/02/2025
實用
185呎
$24,865/呎
1.3年
賣方/
賣方的控權公司
賣方:
泰鏗有限公司
賣方的控權公司:
More Action Investments Limited
Sparkle Hope Limited
Miracle Cheer Limited
宏安地產有限公司
Earnest Spot Limited
Wang On Enterprises (Bvi) Limited
Wang On Group Limited
特色
單位歷史成交
平面圖

單位歷史成交
成交日期
成交價
實用呎價
建築呎價
升跌(較上次)
13/02/25
實用呎價
$460萬
$24,865
平面圖
^ 特殊成交個案