相片
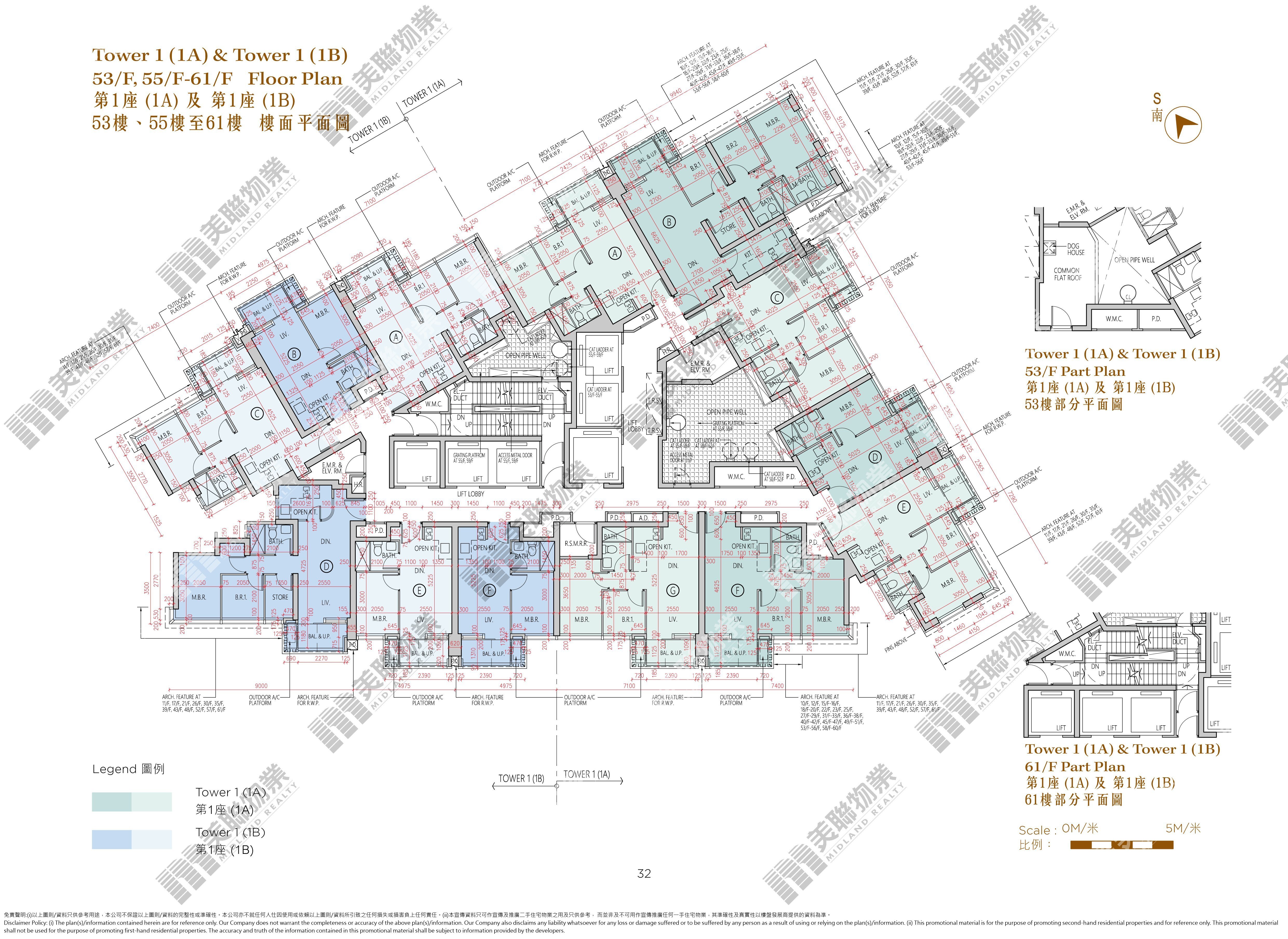
平面圖
地圖
成交價$771萬
成交日期: 08/10/2025
實用
459呎
$16,800/呎
屋苑
日出康城凱柏峰 I
2房
<1年
賣方/
賣方的控權公司
賣方:
香港鐵路有限公司(作為「擁有人」)
佳僑有限公司(作為「如此聘用的人」)
備註:
「擁有人」指期數的法律上的擁有人或實益擁有人。
「如此聘用的人」指擁有人聘用以統籌和監管期數的設計、規劃、建造、裝置、完成及銷售的過程的人士。
賣方的控權公司:
擁有人(香港鐵路有限公司)控權公司
不適用
如此聘用的人(佳僑有限公司)的控權公司
悅景集團有限公司
特色
單位歷史成交
平面圖

單位歷史成交
成交日期
成交價
實用呎價
建築呎價
升跌(較上次)
08/10/25
實用呎價
$771萬
$16,800
平面圖
^ 特殊成交個案