相片
屋苑影片
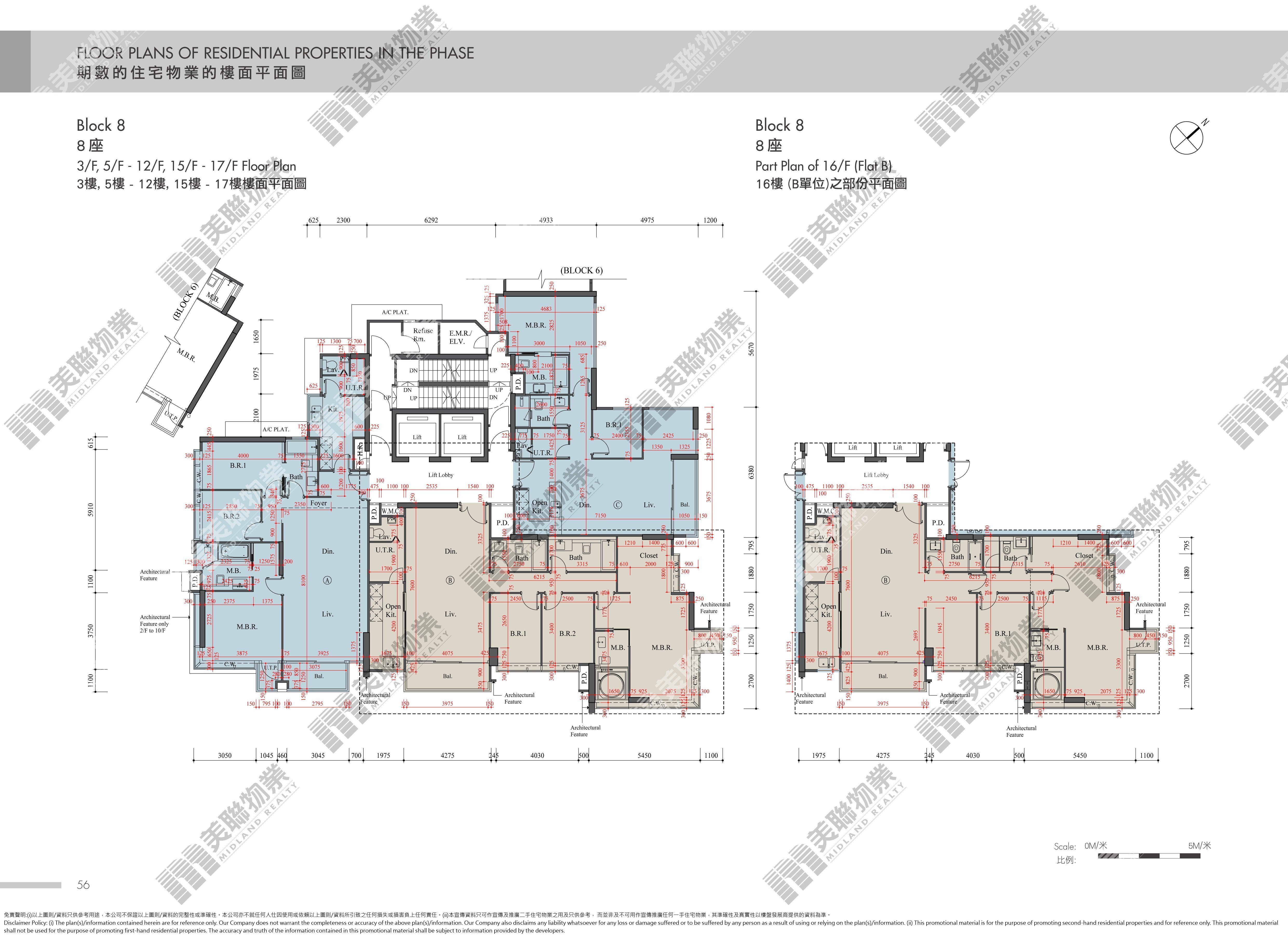
平面圖
地圖
成交價$2,880萬
註冊日期: 19/04/2024
實用
1,380呎
$20,870/呎
屋苑
愉景灣意堤
2房
6.5年
賣方/
賣方的控權公司
賣方
香港興業有限公司(作為「擁有人」)
香港興業國際集團有限公司(作為「如此聘用的人」)
賣方的控權公司
擁有人( 香港興業有限公司) 的控權公司
Brentall Investments Limited
Hk Resort International Limited
香港興業國際集團有限公司
如此聘用的人( 香港興業國際集團有限公司) 的控權公司
不適用
特色
單位歷史成交
平面圖

單位歷史成交
成交日期
成交價
實用呎價
建築呎價
升跌(較上次)
19/04/24
實用呎價
$2,880萬
$20,870
平面圖
^ 特殊成交個案