美聯信心指數
較上週
NaN%
較上月
NaN%
(29/10/2025)
美聯集團
工商舖
內地物業
澳門物業
金融服務
移民顧問
按揭轉介
信貸服務
美聯會
美聯信心指數
較上週
NaN%
較上月
NaN%
(29/10/2025)
登入
註冊
繁中
HKD
ft²
主頁
成交
嘉信大廈
嘉信大廈
A座
9樓
A3室
註冊處成交
location
北角 / 炮台山 英皇道117號
分享給朋友
註冊日期: 12/02/2025
註冊處成交
相片
地圖
主頁
成交
嘉信大廈
嘉信大廈
A座
9樓
A3室
註冊處成交
location
北角 / 炮台山 英皇道117號
分享給朋友
註冊日期: 12/02/2025
註冊處成交
分享給朋友
成交價
$505
萬
註冊日期: 12/02/2025
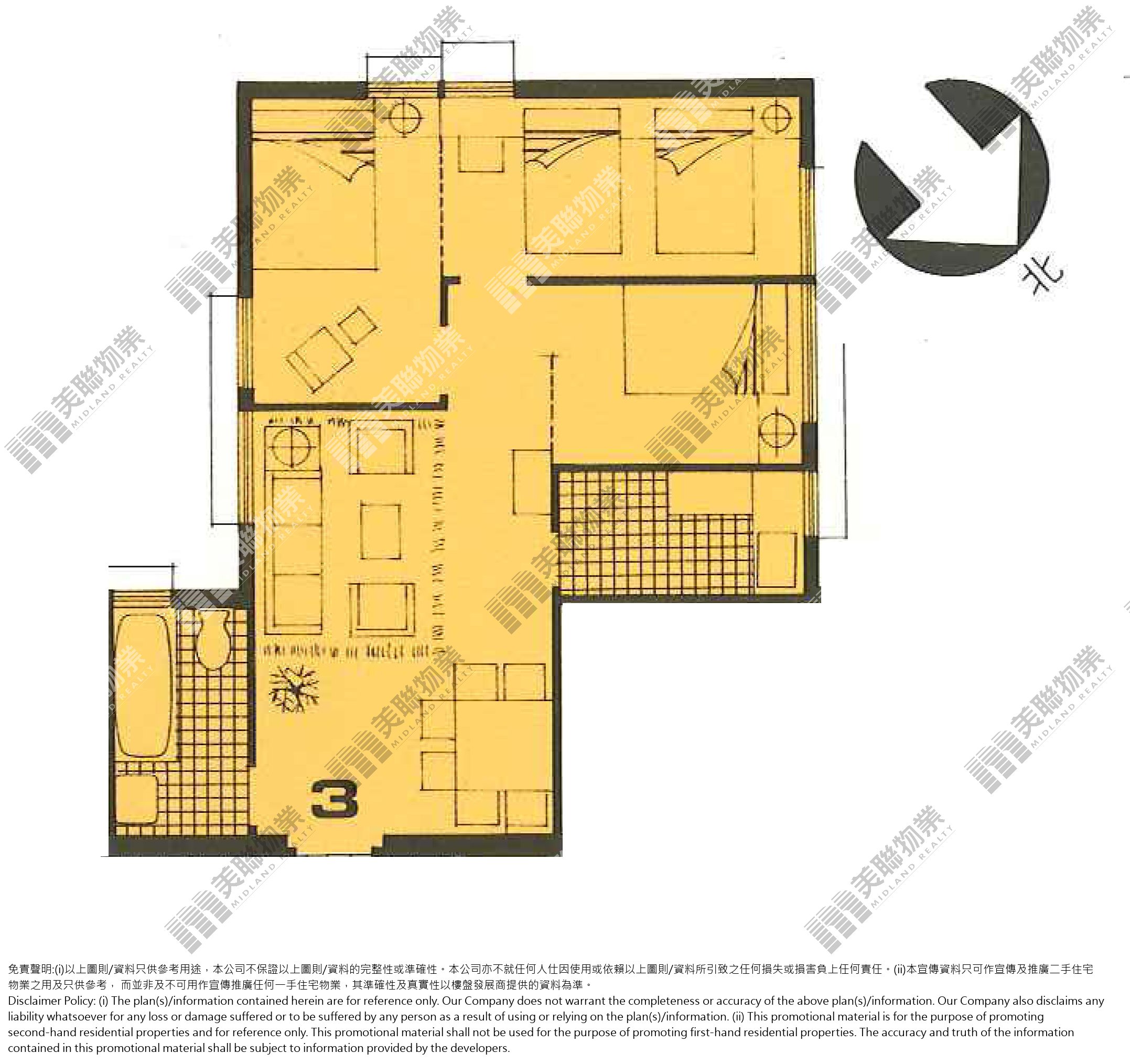
實用
522呎
$9,674/呎
屋苑
嘉信大廈
46.3年
單位歷史成交
平面圖
單位歷史成交
成交日期
成交價
實用呎價
建築呎價
升跌(較上次)
12/02/25
實用呎價
$505萬
$9,674
平面圖
^ 特殊成交個案
成交紀錄
同屋苑
同區
全棟成交紀錄
更多成交紀錄
我要放盤