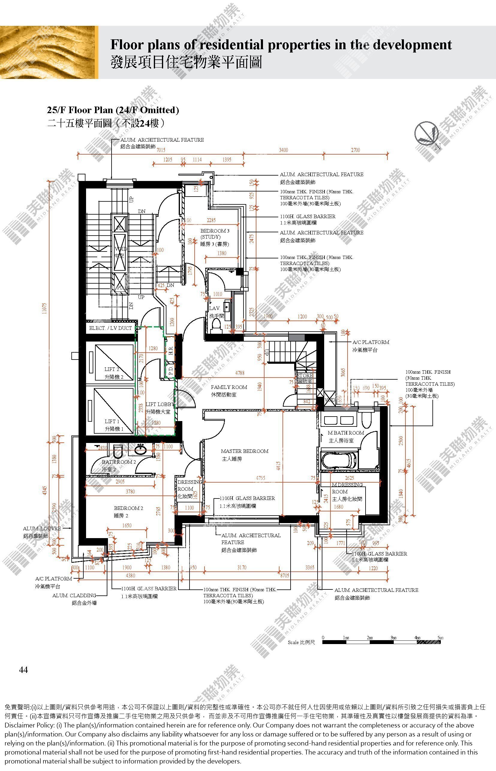
Yoo 18 Bonham
25&26樓
-室
註冊處成交
一手
location
西半山 般咸道18號
註冊日期: 28/01/2019
註冊處成交
一手
相片
平面圖
地圖
Yoo 18 Bonham
25&26樓
-室
註冊處成交
一手
location
西半山 般咸道18號
註冊日期: 28/01/2019
註冊處成交
一手
單位歷史成交
平面圖

單位歷史成交
成交日期
成交價
實用呎價
建築呎價
升跌(較上次)
28/01/19
實用呎價
$1.29億
$51,621
平面圖
^ 特殊成交個案