Yoo 18 Bonham
16&17樓
-室
註冊處成交
一手
location
西半山 般咸道18號
註冊日期: 03/05/2024
註冊處成交
一手
相片
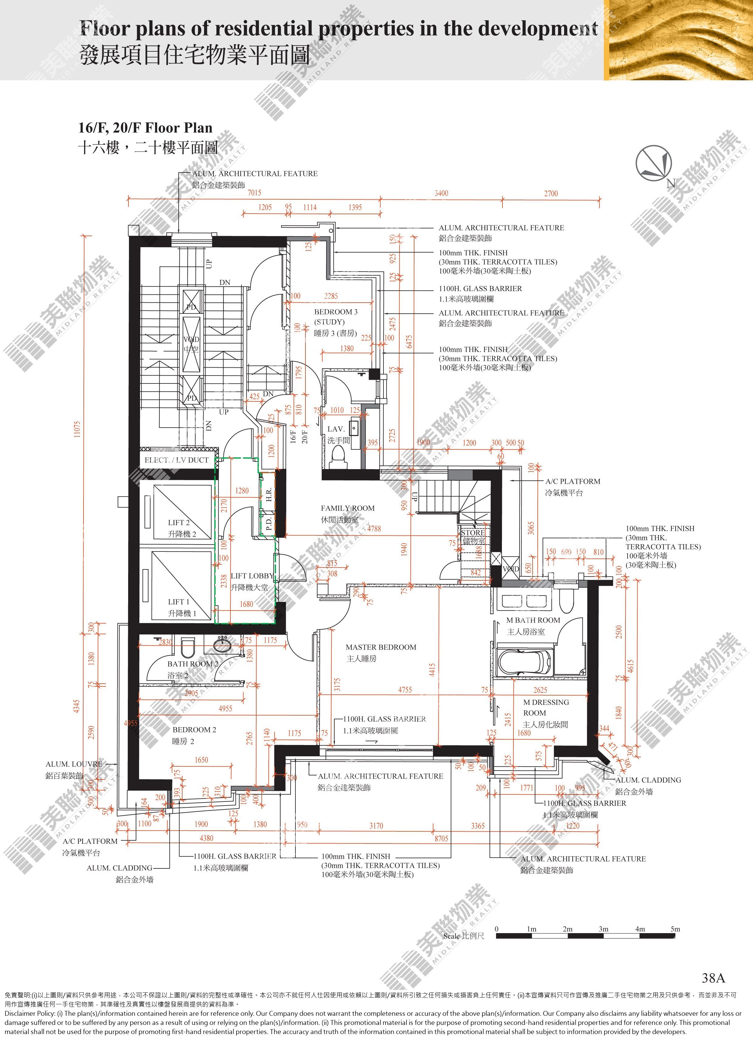
平面圖
地圖
Yoo 18 Bonham
16&17樓
-室
註冊處成交
一手
location
西半山 般咸道18號
註冊日期: 03/05/2024
註冊處成交
一手
單位歷史成交
平面圖

單位歷史成交
成交日期
成交價
實用呎價
建築呎價
升跌(較上次)
03/05/24
實用呎價
$8,300萬
$33,213
平面圖
^ 特殊成交個案