美聯信心指數
較上週
NaN%
較上月
NaN%
(15/10/2025)
美聯集團
工商舖
內地物業
澳門物業
金融服務
移民顧問
按揭轉介
信貸服務
美聯會
美聯信心指數
較上週
NaN%
較上月
NaN%
(15/10/2025)
登入
註冊
繁中
HKD
ft²
主頁
成交
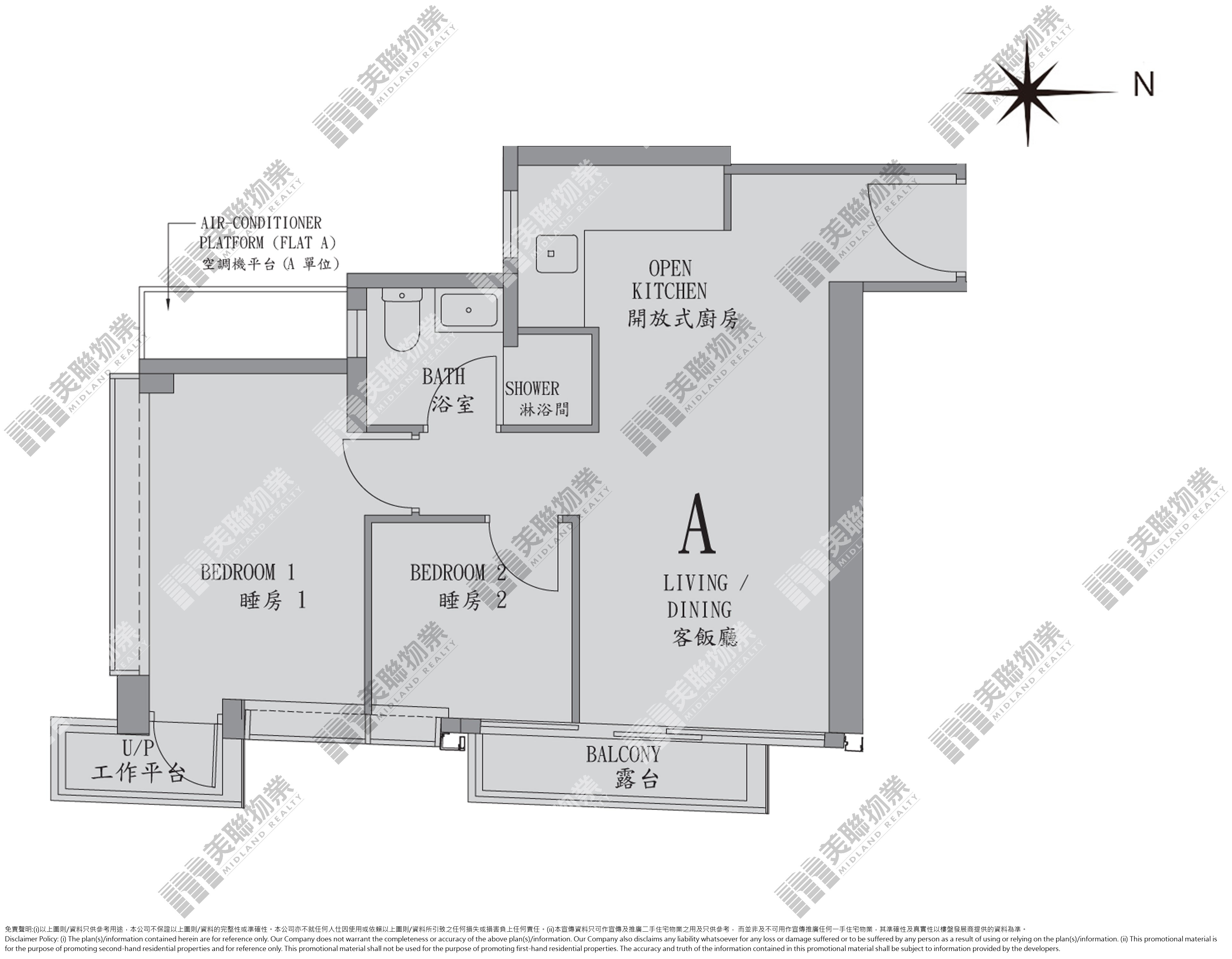
瑧蓺
瑧蓺
27樓
A室
註冊處成交
location
西營盤 西源里1號
分享給朋友
註冊日期: 14/10/2025
註冊處成交
相片
屋苑影片
地圖
主頁
成交
瑧蓺
瑧蓺
27樓
A室
註冊處成交
location
西營盤 西源里1號
分享給朋友
註冊日期: 14/10/2025
註冊處成交
分享給朋友
成交價
$908
萬
註冊日期: 14/10/2025
實用
462呎
$19,654/呎
屋苑
瑧蓺
2房
7.4年
賣方/ 賣方的控權公司
賣方: 天怡創建有限公司 賣方的控權公司: 新世界發展有限公司 Iconic Century Limited 奇盛投資有限公司
特色
連露台
連工作平台
單位歷史成交
平面圖
單位歷史成交
成交日期
成交價
實用呎價
建築呎價
升跌(較上次)
14/10/25
實用呎價
$908萬
$19,654
-35.0%
11/01/18
實用呎價
$1,396萬
$30,212
平面圖
^ 特殊成交個案
成交紀錄
同屋苑
同區
全棟成交紀錄
更多成交紀錄
我要放盤