單位歷史成交
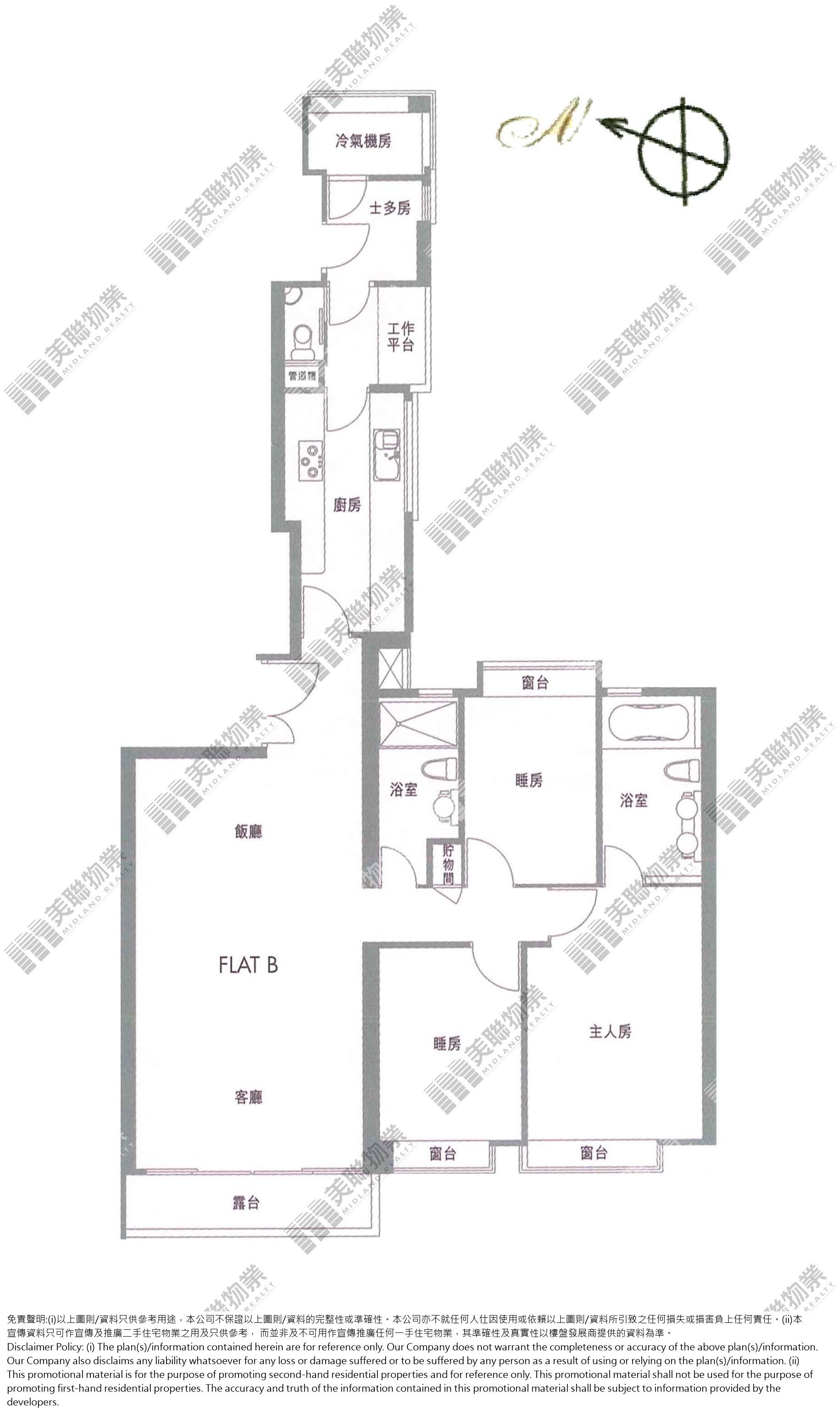
平面圖

單位歷史成交
成交日期
成交價
實用呎價
建築呎價
升跌(較上次)
22/05/25
實用呎價
建築呎價
$2,500萬
$18,275
$14,863
18/10/12
實用呎價
建築呎價
$2,500萬
$18,275
$14,863
105.3%
18/06/04
實用呎價
建築呎價
$1,218萬
$8,904
$7,241
3.2%
21/05/04
實用呎價
建築呎價
$1,180萬
$8,626
$7,015
80.4%
13/05/03
實用呎價
建築呎價
$654萬
$4,781
$3,888
平面圖
^ 特殊成交個案