相片
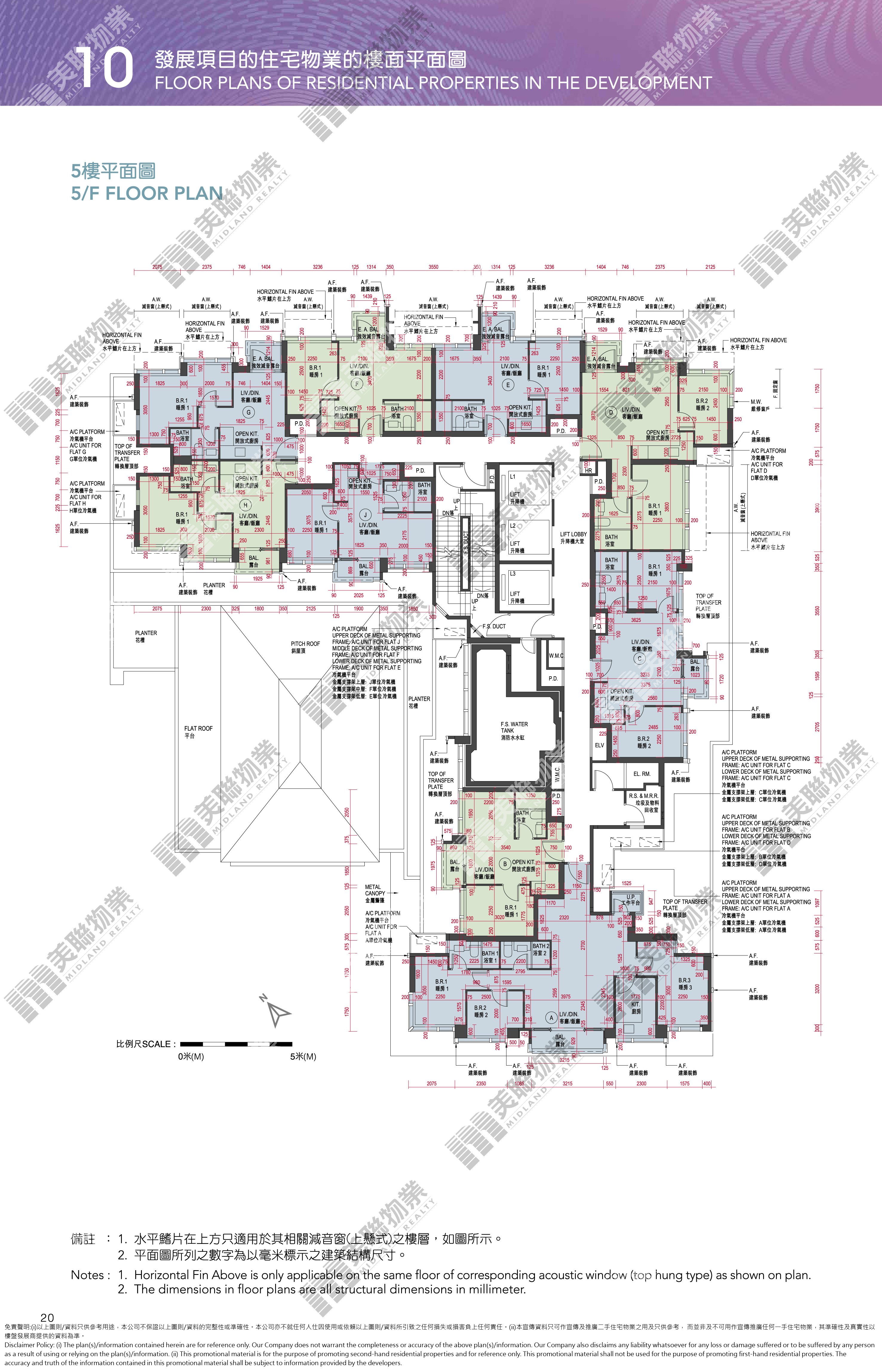
平面圖
地圖
成交價$539萬
註冊日期: 06/10/2023
實用
323呎
$16,686/呎
屋苑
1房
2.9年
賣方/
賣方的控權公司
賣方:
市區重建局作為「擁有人」)
Avion Investment Limited (作為「如此聘用的人」)
備註:
「擁有人」指發展項目的法律上的擁有人或實益擁有人。
「如此聘用的人,指擁有人聘以統籌和監管發展項目的設計、規劃、建造、裝置、完成及銷售的過程的人士。
擁有人(市區重建局)的控權公司:
不適用
如此聘用的人(Avion Investment Limited)的控權公司:
恒基兆業有限公司及恒基兆業地產有限公司
特色
單位歷史成交
平面圖

單位歷史成交
成交日期
成交價
實用呎價
建築呎價
升跌(較上次)
06/10/23
實用呎價
$539萬
$16,686
平面圖
^ 特殊成交個案