相片
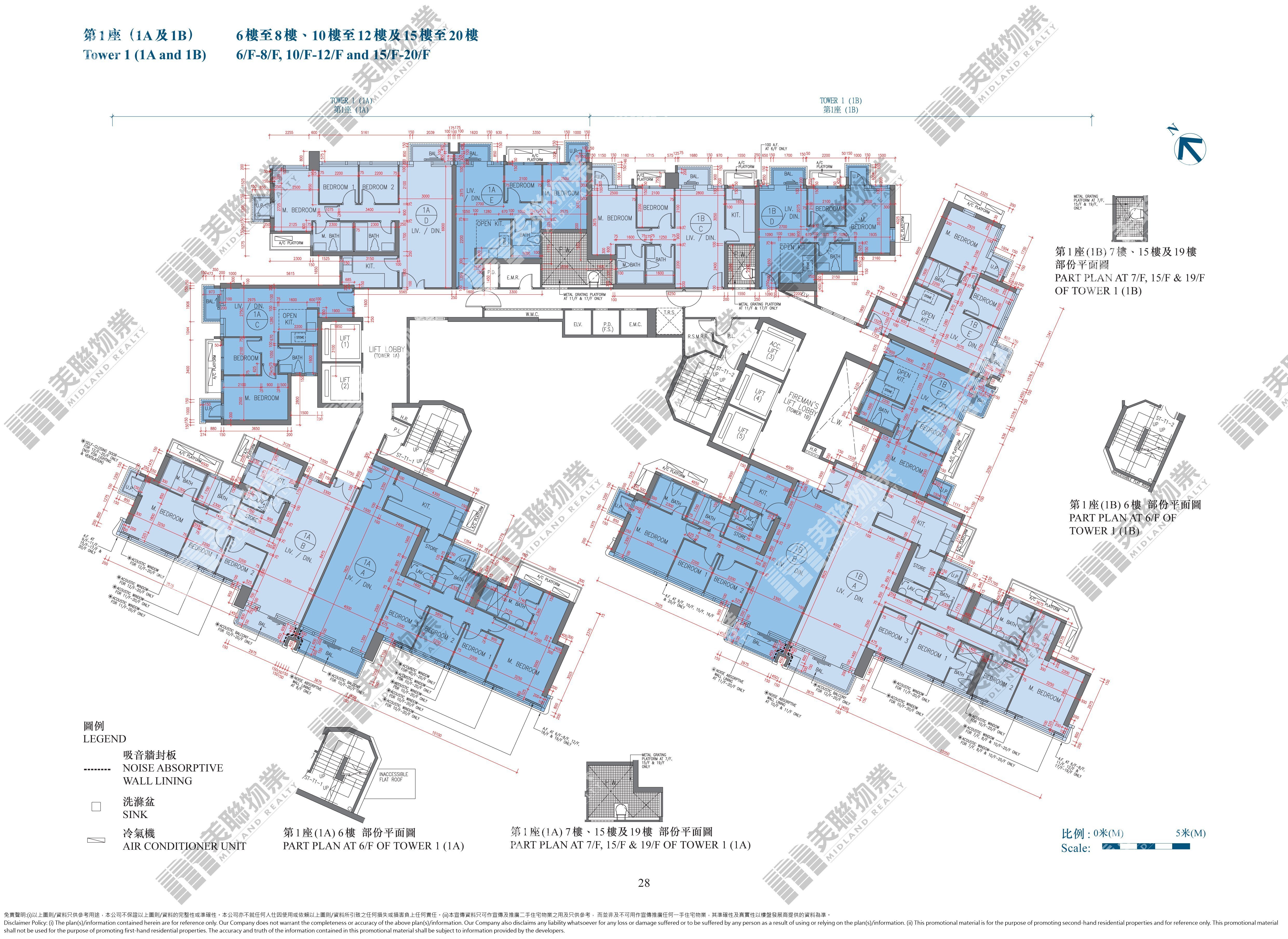
平面圖
地圖
成交價$4,704萬
註冊日期: 08/10/2025
實用
1,299呎
$36,216/呎
屋苑
港島南岸揚海
4房
3.2年
賣方/
賣方的控權公司
賣方:
香港鐵路有限公司(作為“擁有人”)
High Crown Holdings Limited (作為“如此聘用的人”)
(備註︰“擁有人” 指期數的法律上的擁有人或實益擁有人。“如此聘用的人”指擁有人聘用以統籌和監管期數的設計、規劃、建造、裝置、完成及銷售的過程的人士)
賣方的控權公司:
擁有人(香港鐵路有限公司)的控權公司︰
不適用
如此聘用的人(High Crown Holdings Limited)的控權公司︰
Best Profile Limited
特色
單位歷史成交
平面圖

單位歷史成交
成交日期
成交價
實用呎價
建築呎價
升跌(較上次)
08/10/25
實用呎價
$4,704萬
$36,216
平面圖
^ 特殊成交個案